Are you looking for Two Bedroom House Plans in Kerala? Look no further! Kerala is known for its beautiful architecture and serene surroundings, making it a perfect place to build your dream home. With a two-bedroom house plan, you can have the perfect blend of space and comfort.
Whether you are a small family or a couple looking for a cozy retreat, a two-bedroom house plan in Kerala can be the ideal choice for you. These plans are designed to maximize space while maintaining a traditional Kerala style that is both functional and aesthetically pleasing.
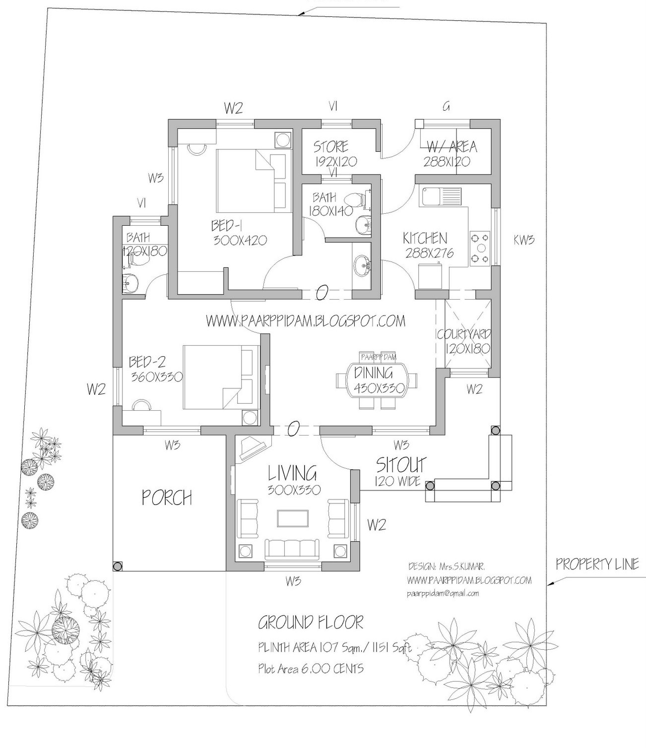
Two Bedroom House Plans Kerala
Two Bedroom House Plans Kerala
When it comes to designing your dream home in Kerala, it’s essential to consider factors like natural lighting, ventilation, and privacy. Two-bedroom house plans in Kerala are carefully crafted to incorporate these elements, ensuring that you have a comfortable and functional living space.
With a two-bedroom house plan in Kerala, you can enjoy the beauty of nature without compromising on modern amenities. From open-concept layouts to spacious bedrooms and well-appointed kitchens, these plans are designed to meet the needs of today’s homeowners while embracing the rich architectural heritage of Kerala.
So, if you’re ready to build your dream home in Kerala, consider opting for a two-bedroom house plan that combines traditional charm with modern convenience. With the right design and layout, you can create a space that reflects your style and provides a peaceful sanctuary in the heart of Kerala’s natural beauty.
Start exploring Two Bedroom House Plans in Kerala today and turn your dream home into a reality!
Finding Your Dream Tiny Double Story House A Beautiful Blend Of Comfort And Style Kerala Home Design And Floor Plans 10K Dream Houses
Kerala Architecture Plans Like 1 Acha Homes
Low Budget 2 Bedroom Home Plan With 1151 Square Feet In 6 Cent Plot Kerala Home Planners
2 BHK Guest House 1700 Sq Ft Kerala House Plan Kerala Home Design Architect Kerala Best Home Design Best Architect
Stylish 900 Sq Ft New 2 Bedroom Kerala Home Design With Floor Plan Kerala Home Planners





