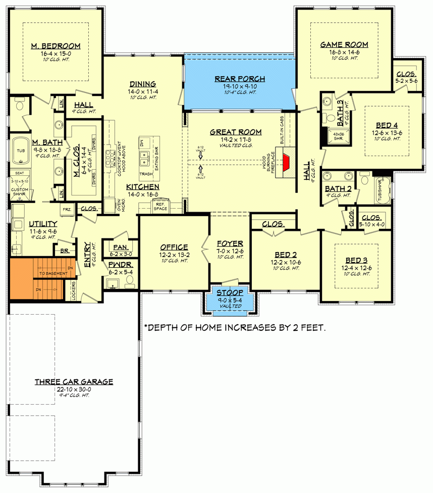
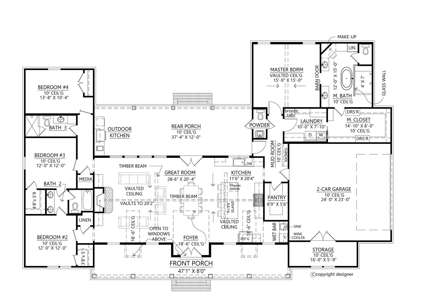
4 Bedroom Single Floor House Plans