Looking for a cozy and affordable living space? Tiny 1 bedroom house plans could be the perfect solution for you. These compact homes are designed to maximize every square foot, providing comfort and functionality in a small footprint.
Whether you’re a first-time homebuyer, downsizing, or looking for a vacation retreat, a tiny 1 bedroom house plan offers a smart and stylish living option. These homes are often energy-efficient, easy to maintain, and can be customized to suit your needs and preferences.
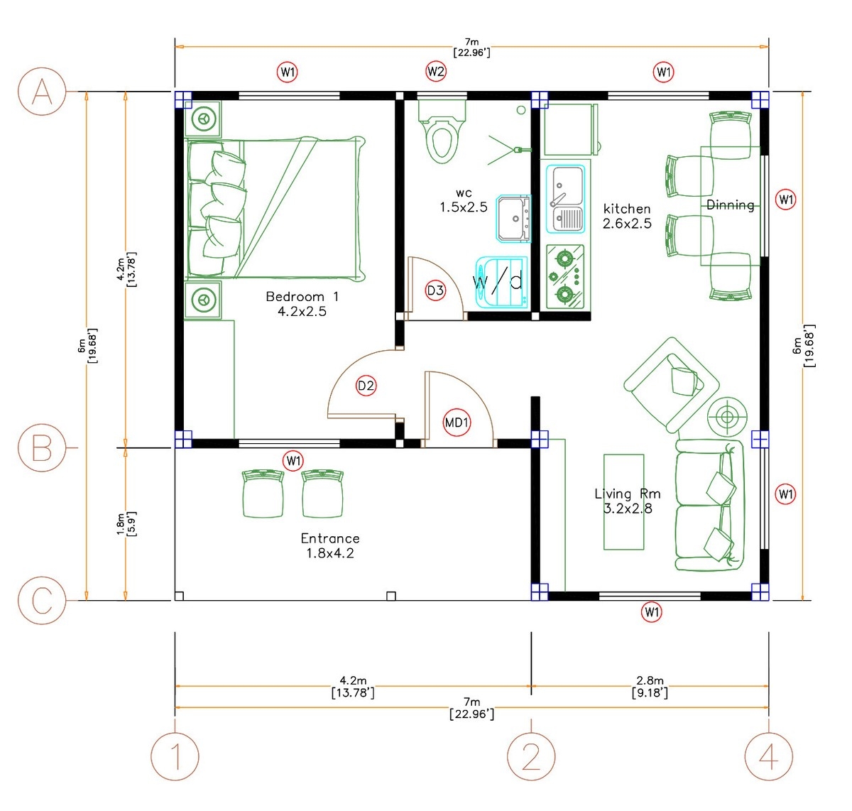
Tiny 1 Bedroom House Plans
Tiny 1 Bedroom House Plans: Small Space, Big Potential
With clever design features like open floor plans, built-in storage, and multi-functional furniture, tiny 1 bedroom house plans make the most of limited space. These homes often include outdoor living areas, such as a patio or deck, to expand the living space and connect with nature.
Many tiny house plans also incorporate sustainable materials and green building practices, making them environmentally friendly choices. Plus, the smaller footprint means lower utility costs and less maintenance, allowing you to save money and reduce your carbon footprint.
Whether you’re looking for a primary residence, a guest house, or a backyard studio, tiny 1 bedroom house plans offer a practical and affordable housing solution. With thoughtful design and attention to detail, these small homes provide comfort, style, and functionality in a compact package.
Explore the world of tiny house living and discover the possibilities of tiny 1 bedroom house plans. Embrace the simplicity, affordability, and sustainability of these small but mighty homes, and make your dream of living large in a tiny space a reality.
Small 1 Bedroom House Design 13 022 AfroHousePlans
23×20 Feet Tiny House Plans 7×6 Meter One Bedroom Gable Roof Full Plan Hard Copy EBay
Tiny Home Floor Plan Gallery Robin Sheds
Tiny Home Floor Plan Gallery Robin Sheds
Simple One Bedroom House Plans Eliana





