Finding the perfect home design can be a daunting task, especially with so many options available. Four bedroom ranch house plans are becoming increasingly popular for families looking for space and comfort. These designs offer a blend of functionality and style.
Ranch-style homes are known for their single-story layout, making them accessible and easy to navigate. This design is perfect for families with children or those who prefer a more open living space. The four-bedroom layout provides ample room for everyone.
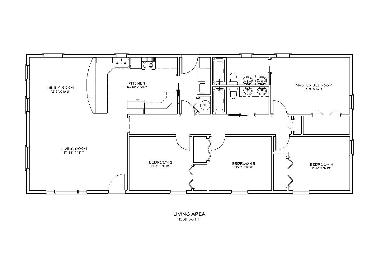
Four Bedroom Ranch House Plans
Four Bedroom Ranch House Plans
One of the main advantages of four bedroom ranch house plans is their versatility. These homes can accommodate various lifestyles, whether you need extra rooms for guests, a home office, or playrooms for kids. The possibilities are endless.
Another appealing feature is the seamless flow between indoor and outdoor spaces. Many ranch homes include large windows and sliding doors that lead to patios or backyards, perfect for entertaining or enjoying family time outside.
Additionally, these plans often emphasize energy efficiency. With modern building materials and techniques, four bedroom ranch houses can be designed to minimize energy consumption while maximizing comfort and style.
In conclusion, four bedroom ranch house plans offer an ideal combination of space, accessibility, and modern design. They cater to diverse needs while providing a cozy atmosphere for families to thrive in. Consider this option for your next home!
