If you’re in the market for a spacious and cozy home, four bedroom ranch house plans might be just what you need. These floor plans offer plenty of room for your family to spread out and relax, with a single-story design that is both practical and stylish.
With four bedrooms, you’ll have ample space for a growing family, guests, or even a home office. The open layout of a ranch-style home creates a warm and inviting atmosphere, perfect for gatherings and everyday living.
Four Bedroom Ranch House Plans
Four Bedroom Ranch House Plans: Finding the Perfect Layout
When choosing a four bedroom ranch house plan, consider your family’s needs and lifestyle. Look for features like a master suite, spacious living areas, and a functional kitchen layout. With a variety of styles and sizes available, you’re sure to find the perfect plan to suit your needs.
Many four bedroom ranch house plans also include outdoor living spaces, such as a patio or deck, perfect for enjoying the beautiful weather and entertaining guests. These homes are ideal for those who love to spend time outdoors and value the convenience of single-story living.
Whether you’re looking for a spacious family home or a cozy retreat, four bedroom ranch house plans offer the perfect combination of comfort and style. With their practical layout and inviting design, these homes are sure to meet all your needs and exceed your expectations.
Explore the wide selection of four bedroom ranch house plans available online or consult with a designer to create a custom plan that suits your unique requirements. With the right floor plan, you can enjoy the comfort and convenience of ranch-style living for years to come.
Plan 68607VR 4 Bed Ranch Home Plan With Open Concept Living
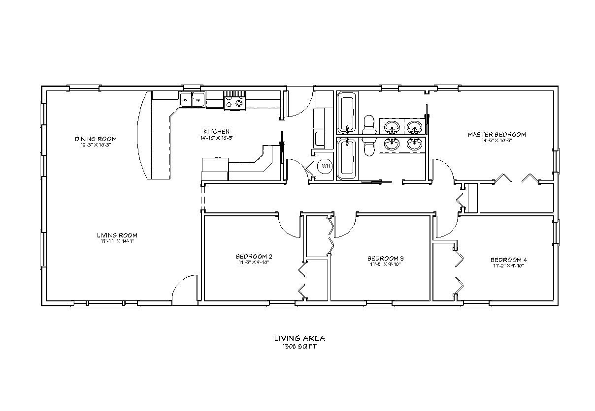
4 Bedroom 2 Bath Ranch Style Architectural Plans 1508 SF 60 x25
Madera House Plan 4 Bedroom Ranch Home Design MF 2762
Plan 45467 4 Bedroom Classic Ranch House Plan With Covered Porc
Plan 41318 Ranch Style With 4 Bed 3 Bath 3 Car Garage





