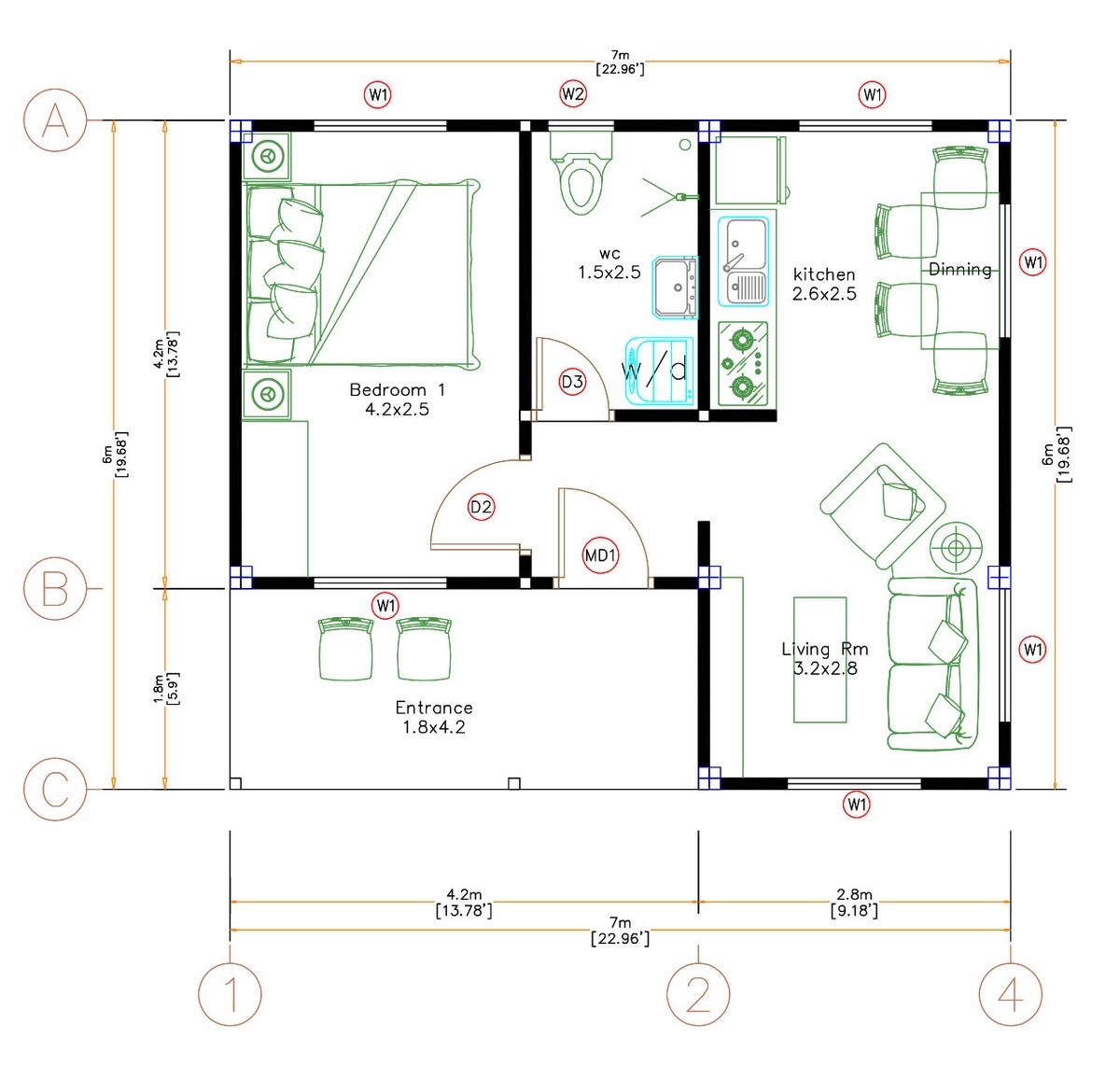
Tiny 1 Bedroom House Plans