Are you dreaming of owning a cozy 2-bedroom house in Jamaica? Look no further! With the perfect 2 bedroom house plans, you can turn your dream into reality. Imagine the tropical breeze, the sound of the ocean, and your own piece of paradise.
Whether you’re looking to build a vacation home or a permanent residence, 2 bedroom house plans in Jamaica offer the perfect balance of comfort and style. You can choose from a variety of designs to suit your needs and preferences, from traditional Caribbean architecture to modern and sleek layouts.
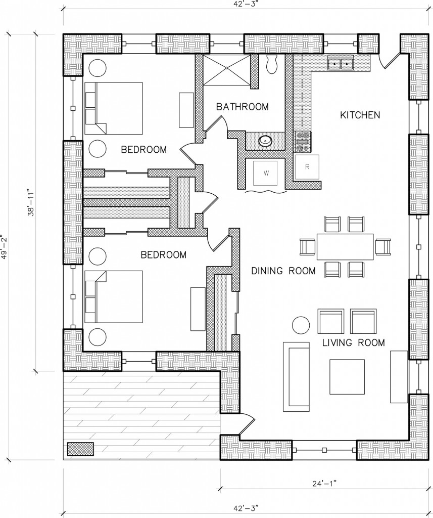
2 Bedroom House Plans In Jamaica
2 Bedroom House Plans In Jamaica
These house plans typically feature spacious living areas, cozy bedrooms, and outdoor spaces that make the most of Jamaica’s natural beauty. With open floor plans, high ceilings, and large windows, you can enjoy the stunning views and natural light that Jamaica has to offer.
Many 2 bedroom house plans in Jamaica also include features such as verandas, patios, and outdoor kitchens, perfect for enjoying the warm climate and entertaining guests. You can customize your plan to include amenities like a pool, a gazebo, or even a guest cottage for visitors.
Whether you’re looking for a simple and affordable design or a luxurious retreat, 2 bedroom house plans in Jamaica can be tailored to fit your budget and lifestyle. So why wait? Start planning your dream home in paradise today!
House The World Jamaica R One Studio Architecture
RE MAX Elite Real Estate Experts In Jamaica
Earth Domes Archive Source Farm Foundation U0026 Ecovillage
Vistas Floor Plan Housing Agency Of Jamaica Limited
Vistas Floor Plan Housing Agency Of Jamaica Limited





