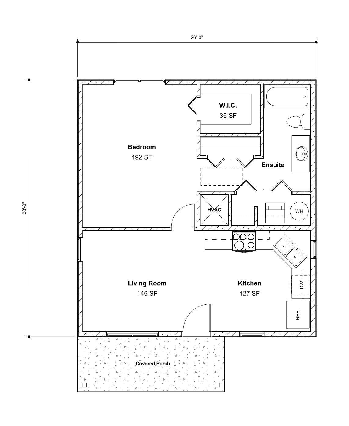
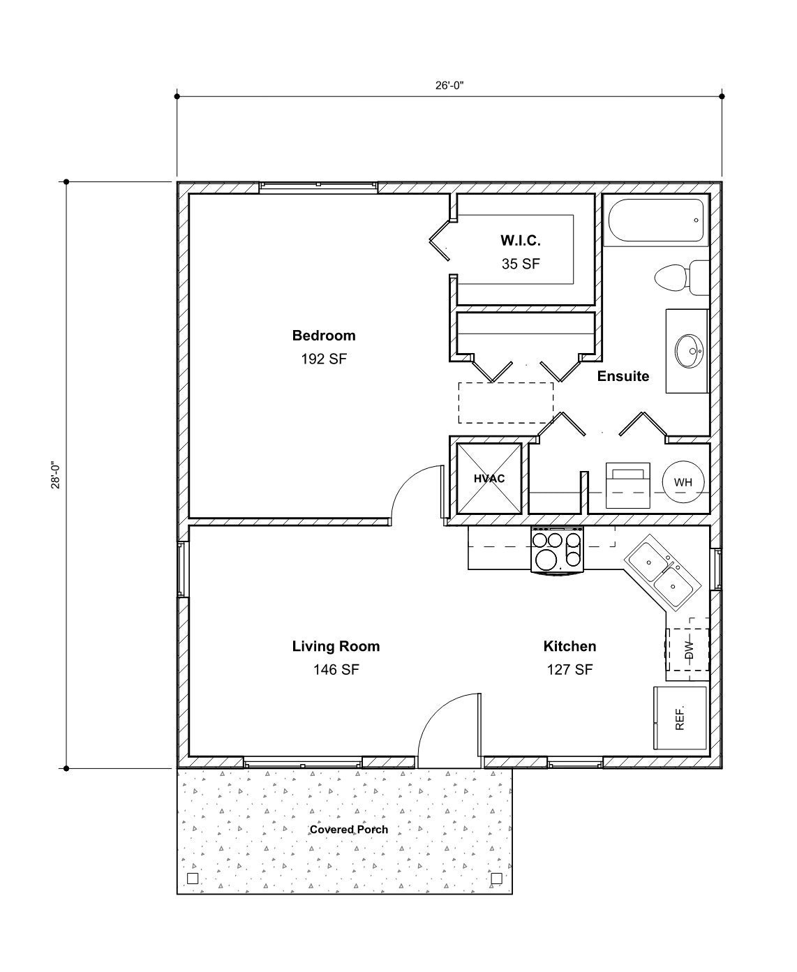
1 Bedroom House Plans With Garage