Are you considering building a new home or renovating your current space? If so, you may be exploring different house plans and elevations to find the perfect design for your needs. One popular option is the 2-bedroom house plan elevation, which offers a cozy and functional layout.
With a 2-bedroom house plan elevation, you can create a comfortable living space that meets your requirements while also being aesthetically pleasing. This type of design typically includes two bedrooms, a bathroom, a kitchen, and a living room, making it ideal for small families, couples, or individuals looking for a compact yet efficient layout.
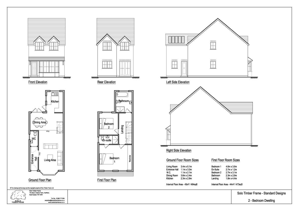
2 Bedroom House Plan Elevation
2 Bedroom House Plan Elevation
When considering a 2-bedroom house plan elevation, you have the freedom to customize the design to suit your preferences and lifestyle. Whether you prefer a modern, traditional, or minimalist style, there are plenty of options available to create a space that reflects your personality and taste.
One of the benefits of a 2-bedroom house plan elevation is that it can be cost-effective to build, making it a practical choice for those on a budget. Additionally, the compact layout can help maximize space efficiency and create a cozy atmosphere that feels inviting and welcoming.
Overall, a 2-bedroom house plan elevation is a versatile and practical option for anyone looking to build a new home or renovate their current space. With the ability to customize the design to suit your needs and preferences, you can create a comfortable and stylish living environment that you will love for years to come.
Whether you’re a first-time homebuyer or looking to downsize, a 2-bedroom house plan elevation offers a functional and attractive solution for your housing needs. Consider exploring this option further to see if it’s the right fit for you!
Plan 81882 Modern And Compact House Plan With 2 To 3 Bedrooms
Small House Plans 7×6 With 2 Bedrooms House Plans 3D
House Design 6×8 With 2 Bedrooms House Plans 3D
Small House Design 7×7 With 2 Bedrooms House Plans 3D
Townsend 2 2 Bedroom House Design Designs Solo Timber Frame Homes





