Finding the perfect home design can be a thrilling yet overwhelming experience. With so many options available, it’s essential to narrow down your choices to suit your lifestyle and preferences. Modern 4 bedroom house plans are a popular choice for families and individuals alike.
These plans offer a blend of functionality and style, making them ideal for various living situations. Whether you’re looking for open spaces or cozy nooks, modern designs cater to diverse needs while ensuring comfort and aesthetic appeal.
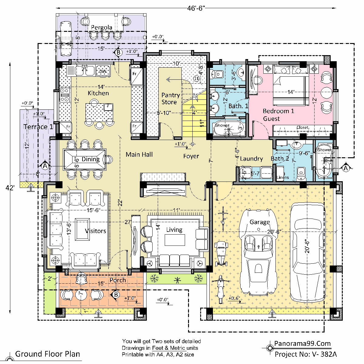
Modern 4 Bedroom House Plans
Modern 4 Bedroom House Plans
One of the standout features of modern 4 bedroom house plans is their emphasis on open floor layouts. This design promotes a seamless flow between living areas, making it perfect for entertaining guests or spending quality time with family.
Additionally, these plans often incorporate large windows that invite natural light into the home. This not only enhances the ambiance but also creates a sense of connection with the outdoors, making your living space feel more expansive and inviting.
Another advantage is the flexibility in room usage. The extra bedrooms can serve various purposes, such as guest rooms, home offices, or playrooms for children. This adaptability ensures that your home can evolve with your changing needs over time.
Incorporating sustainable materials and energy-efficient designs is also common in modern house plans. This focus on eco-friendliness not only benefits the environment but can also lead to long-term savings on utility bills.
Choosing modern 4 bedroom house plans can significantly enhance your living experience. With thoughtful designs that prioritize comfort and sustainability, you’ll find a home that truly reflects your lifestyle and values.
