Looking for the perfect house plan that offers both space and flexibility? Two-bedroom with loft house plans might be just what you’re looking for. These designs provide a cozy living space with the added bonus of a versatile loft area.
Whether you’re a small family, a couple looking for a guest room, or someone who needs a home office or hobby space, two-bedroom with loft house plans offer a variety of options to suit your needs. The loft area can be used as an extra bedroom, a home office, a playroom, or even a cozy reading nook.
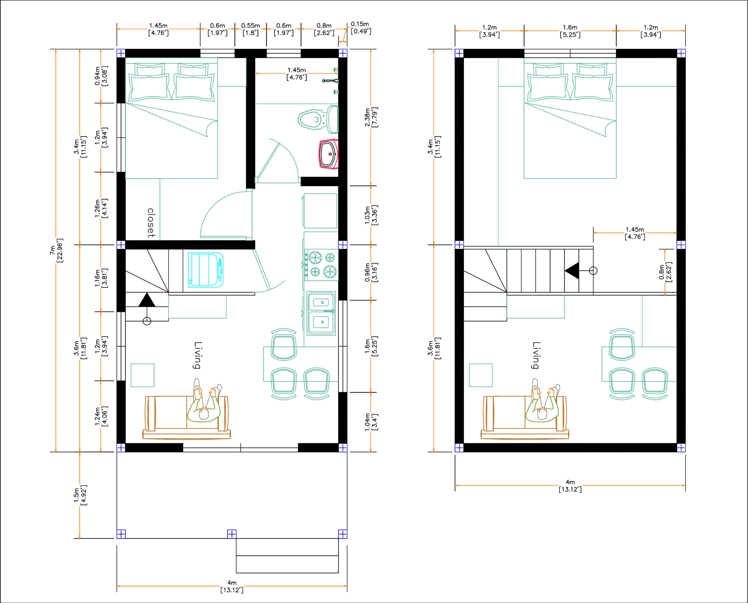
Two Bedroom With Loft House Plans
Two Bedroom With Loft House Plans
One of the key advantages of two-bedroom with loft house plans is their flexibility. You can easily customize the loft area to suit your lifestyle and preferences. Plus, the open concept design of these plans creates a spacious and airy feel, perfect for modern living.
With the growing trend towards minimalism and simplifying our lives, two-bedroom with loft house plans offer a practical and efficient solution. You can make the most of your space without sacrificing style or comfort. These plans are also great for those who want to downsize without feeling cramped.
So, if you’re looking for a versatile and modern living space that offers the perfect balance of comfort and functionality, consider two-bedroom with loft house plans. With their customizable loft area and open concept design, these plans are sure to meet your needs and exceed your expectations.
2 Bedroom Loft Floor Plans In Birmingham The Denham Building
2 Bedroom 1 Bath House Plan
Plan 82912 Modern Farmhouse With Loft Space
8×26 Small Loft House Plan 2 5×8 Meter 2 Beds 1 Bath Shed Roof PDF Full Plans SamHousePlans
13×23 Loft House Plan 4×7 Meter 2 Beds 1 Bath Gable Roof Free House Small House Design Plan





