Finding the perfect home design can be an exciting journey. Among various options, two bedroom house plans stand out for their versatility and comfort, making them ideal for small families or couples.
These plans offer a balance of space and functionality, allowing for cozy living without overwhelming maintenance. They are perfect for those looking to downsize or first-time homeowners seeking a practical layout.
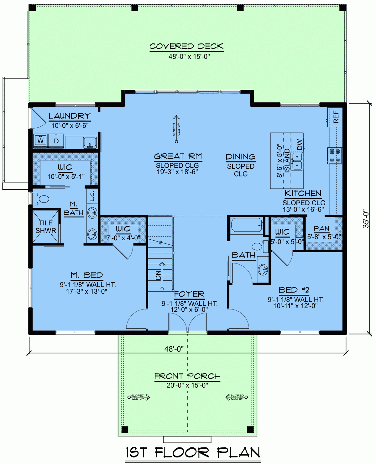
Two Bedroom House Plans
Two Bedroom House Plans
Two bedroom house plans typically feature an open layout that maximizes space. This design often includes a combined living and dining area, creating a welcoming atmosphere for family gatherings or entertaining friends.
Another advantage is the flexibility these plans provide. The second bedroom can serve multiple purposes, such as a guest room, home office, or playroom, adapting to your lifestyle needs over time.
Energy efficiency is also a key benefit. Many modern two bedroom house plans incorporate sustainable materials and designs, reducing utility costs while minimizing environmental impact. This makes them an attractive choice for eco-conscious homeowners.
Ultimately, choosing the right two bedroom house plan can enhance your quality of life. With thoughtful design and functionality, these homes cater to various lifestyles while providing comfort and style.
Exploring two bedroom house plans opens up a world of possibilities for creating your dream home. With the right layout, you can enjoy both comfort and practicality in your living space.
