Looking for the perfect three-bedroom house plan? You’ve come to the right place! Whether you’re a growing family or looking for extra space, a three-bedroom house plan can provide the perfect balance of comfort and functionality.
With three bedrooms, you’ll have plenty of room for a master suite, guest room, home office, or playroom. It’s an ideal layout for families, roommates, or anyone who wants extra space for hobbies or storage.
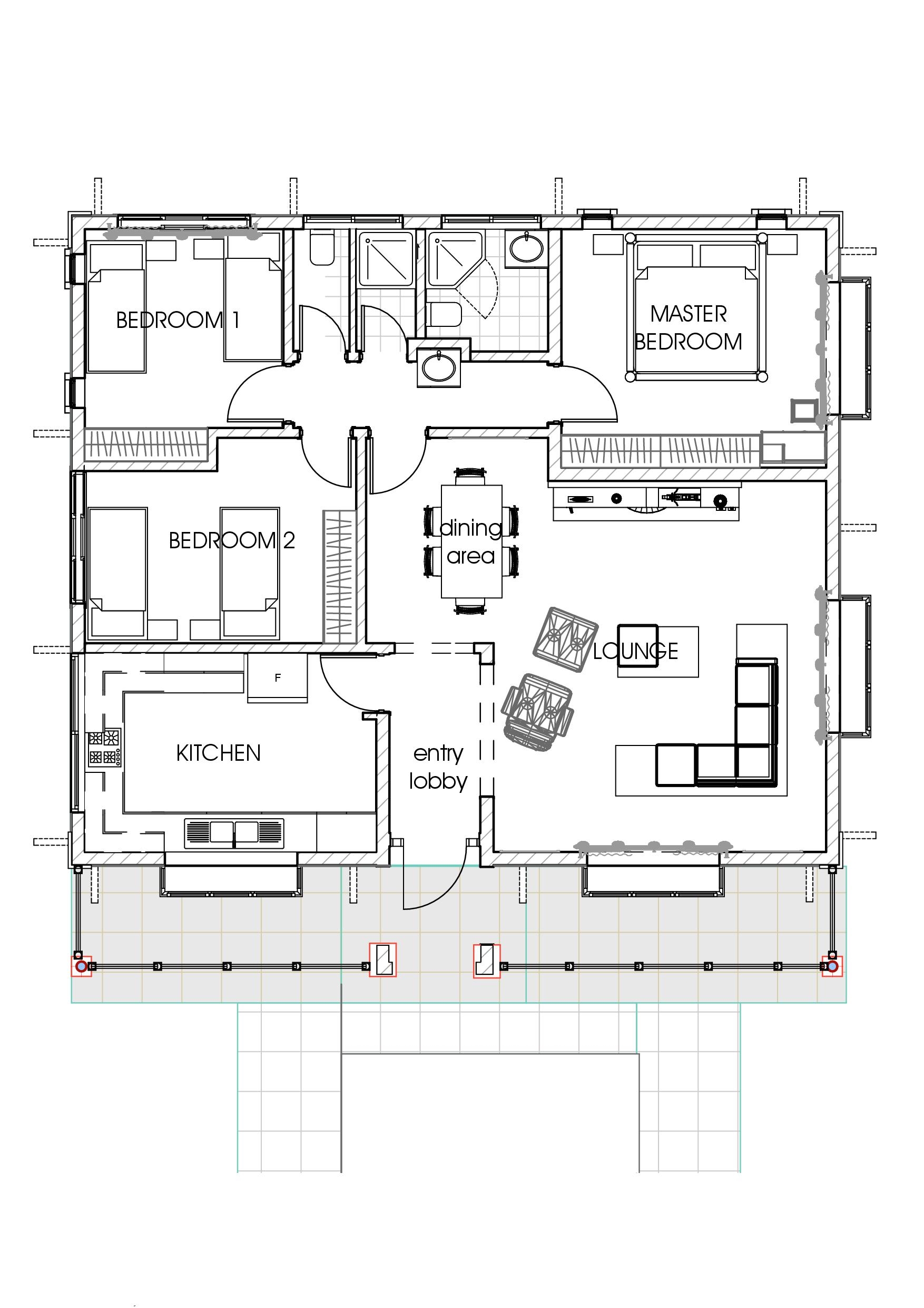
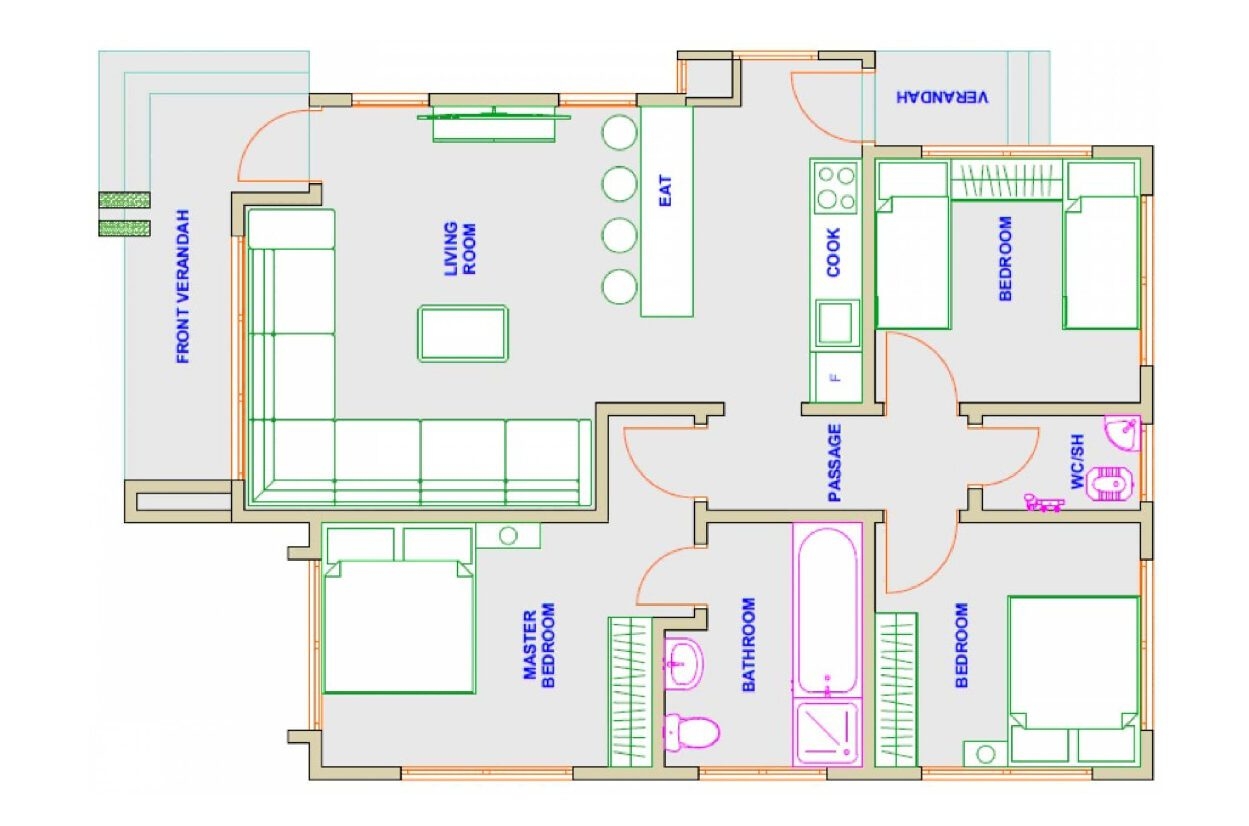
Three Bedroom Houses Plan
Three Bedroom Houses Plan
When choosing a three-bedroom house plan, consider factors like the layout, square footage, and architectural style. You’ll want to ensure that the bedrooms are located for privacy, and the living spaces flow seamlessly for convenience and comfort.
Many three-bedroom house plans feature open-concept layouts, allowing for easy interaction between the kitchen, dining, and living areas. This design is perfect for entertaining guests or keeping an eye on children while preparing meals.
Additionally, three-bedroom house plans often include amenities like walk-in closets, en-suite bathrooms, and outdoor living spaces. These features can enhance your daily life and add value to your home for years to come.
So, if you’re in the market for a three-bedroom house plan, look no further! With the right design and layout, you can create a space that meets your needs and reflects your personal style. Start exploring your options today and make your dream home a reality!
Three Bedroom Bungalow House Design In Kenya 3D Muthurwa
3 BHK House Plan For Perfect Home Construction JK Cement
Low Cost Simple 3 Bedroom House Plans In Kenya Aspax Construction Company
25 Three Bedroom House Apartment Floor Plans
3 Bedroom House Plans PDF Download Home Designs Nethouseplans





