Finding the perfect home design can be a challenge, especially when considering space and functionality. A well-planned layout can make a significant difference in how comfortable and inviting your home feels.
Among various options, three-bedroom houses are popular for families and individuals alike. They offer ample space without being overwhelming, making them ideal for modern living.
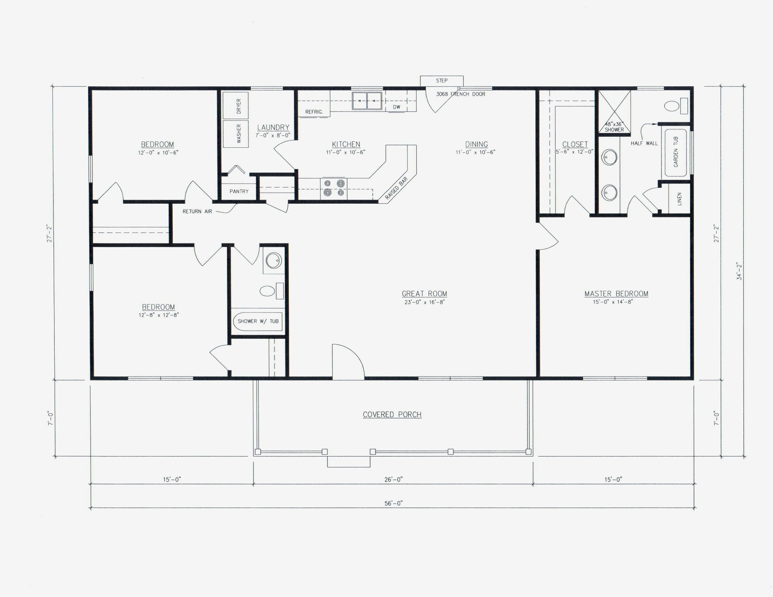
Three Bedroom 30×40 House Floor Plans
Three Bedroom 30×40 House Floor Plans
Three-bedroom 30×40 house floor plans provide a balanced approach to space utilization. These designs typically include a living area, kitchen, and dining space, ensuring that every square foot is used effectively.
One of the key advantages of these floor plans is their versatility. Whether you need a home office, guest room, or play area for kids, the layout can be adjusted to meet your needs without sacrificing comfort.
Additionally, many designs incorporate open-concept layouts that enhance natural light and airflow. This creates a warm and inviting atmosphere, perfect for family gatherings or entertaining friends.
When selecting a floor plan, consider your lifestyle and future needs. A well-thought-out design can adapt as your family grows or changes over time, ensuring long-term satisfaction with your home.
Choosing the right three-bedroom 30×40 house floor plan can significantly impact your living experience. With thoughtful design and flexibility, you can create a space that truly feels like home for years to come.
