If you’re in the market for a new home, you may be considering a three-bedroom 30×40 house floor plan. These types of homes offer plenty of space for families or individuals looking for room to grow.
With three bedrooms, you have the flexibility to use the extra space as a home office, guest room, or playroom. The 30×40 dimensions provide enough room for comfortable living while still being manageable in terms of maintenance and upkeep.
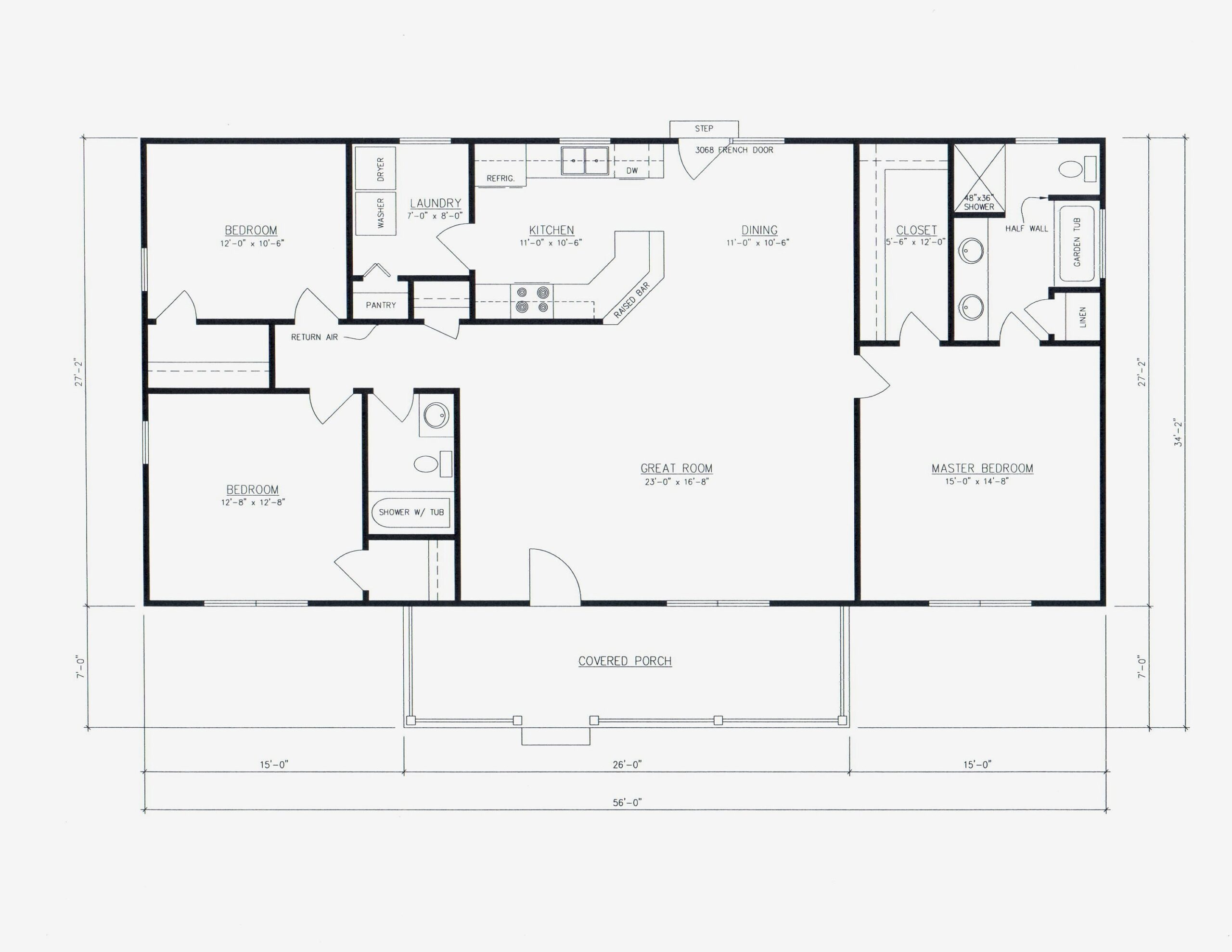
Three Bedroom 30×40 House Floor Plans
Three Bedroom 30×40 House Floor Plans
When choosing a three-bedroom 30×40 house floor plan, consider the layout that best suits your lifestyle. Some plans feature open-concept living areas, while others offer more defined spaces for privacy and functionality.
You can also customize your floor plan to include special features like a master suite with a walk-in closet and ensuite bathroom, a kitchen island for entertaining, or a covered porch for outdoor living. The possibilities are endless!
Whether you’re a first-time homebuyer or looking to downsize, a three-bedroom 30×40 house floor plan offers the perfect balance of space and comfort. Start exploring your options today and find the home of your dreams!
With a three-bedroom 30×40 house floor plan, you can create a space that meets your needs and reflects your personal style. Say goodbye to cramped living quarters and hello to a home that truly feels like yours!
30 40 House Plan 3 BHK North Facing Architego
1400 Sq Ft 3 Bedroom House Plan
30×40 House Floor Plans House Plan Files
3 Bedroom 2 Bath House Plan Floor Plan Great Layout 1500 Sq Ft The Houston House Large Master Bedroom And Bathroom Etsy
30 X 40 House Plan 3Bhk 1200 Sq Ft Architego





