If you’re in the market for a new home, considering a T-shaped 4 bedroom house plan might be just what you need. These types of house plans offer a unique layout that maximizes space and creates a comfortable living environment.
With the bedrooms situated in a T-shape configuration, this design allows for privacy and separation between the living spaces. It also provides ample room for a growing family or hosting guests, making it a versatile option for any homeowner.
T Shaped 4 Bedroom House Plans
T Shaped 4 Bedroom House Plans
One of the key benefits of a T-shaped 4 bedroom house plan is the efficient use of space. The layout allows for easy flow between rooms and creates a natural division between living and sleeping areas.
Additionally, the T-shape design allows for plenty of natural light to enter the home, creating a bright and welcoming atmosphere. This can help reduce energy costs and improve the overall comfort of the space.
Whether you’re looking for a spacious family home or a cozy retreat, a T-shaped 4 bedroom house plan offers the perfect balance of functionality and style. Consider this unique layout for your next home and enjoy the benefits of a well-designed living space.
With its versatile layout and efficient use of space, a T-shaped 4 bedroom house plan is a great option for anyone looking to create a comfortable and inviting home. Explore this design option and discover the possibilities for your new living space.
4 Bedroom Tiny House Floor Plans 1 000 Sq Ft L shaped Design
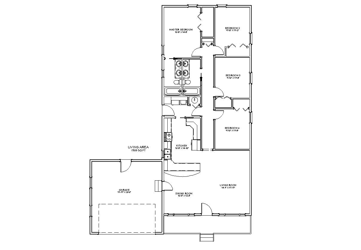
4 Bedroom 2 Bath Narrow Lot Architectural Plans 1508 SF 46 x65 One Story House Plans Compact Floor Plan Double Garage Digital Blueprint Etsy
This Home Displays A Modern Interpretation Of Board And Batten Exterior Siding
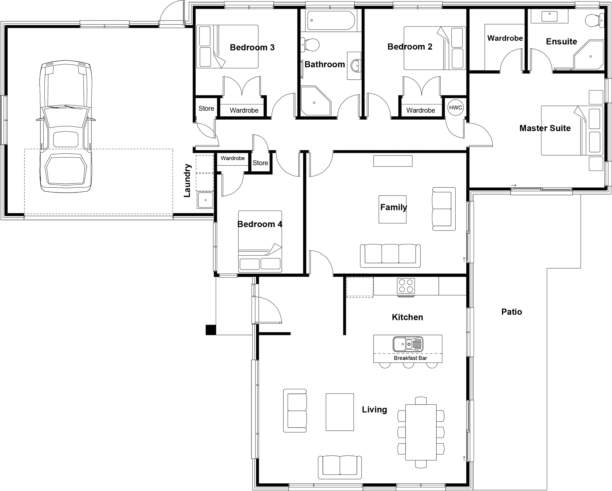
Orewa House Floor Plans Sentinel Homes
Pinto House Plan Orange Homes T Shape House Plans NZ





