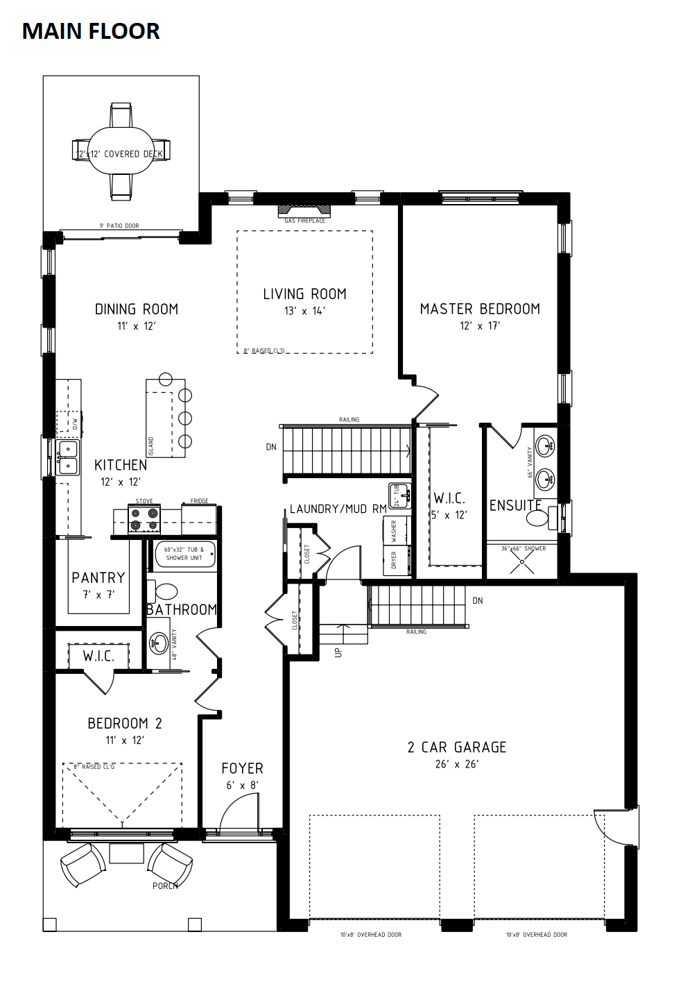
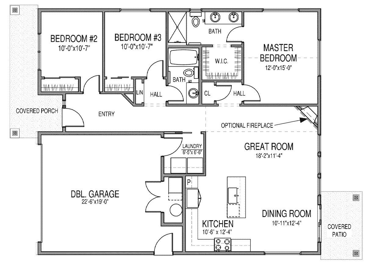
When it comes to choosing a new home, one of the essential factors to consider is the layout of the bedrooms. Split bedrooms house plans have become increasingly popular for their privacy and functional design. These floor plans typically feature the master bedroom on one side of the house and the other bedrooms on the opposite side, providing separation and tranquility for everyone in the household.
Split bedrooms house plans are ideal for families with children, as parents can enjoy their own space away from the kids. This layout also works well for guests staying overnight, as they have their own private area to relax and unwind. Whether you’re a growing family or empty nesters looking to downsize, split bedrooms offer versatility and flexibility for any lifestyle.
Split Bedrooms House Plans
Benefits of Split Bedrooms House Plans
One of the main advantages of split bedrooms house plans is the privacy they offer to each member of the household. With the master suite separated from the other bedrooms, parents can enjoy peace and quiet while children have their space to play and sleep. This layout also allows for better noise control and ensures everyone can rest undisturbed.
Additionally, split bedrooms house plans often feature open-concept living areas, creating a seamless flow between the kitchen, dining, and living spaces. This layout is perfect for entertaining guests and keeping an eye on children while preparing meals. The design also maximizes natural light and ventilation throughout the home, creating a bright and airy atmosphere.
Overall, split bedrooms house plans offer a practical and stylish solution for modern living. Whether you’re looking for more privacy, better functionality, or a flexible layout, this design is sure to meet your needs. Consider choosing a split bedrooms floor plan for your next home and enjoy the benefits of a well-thought-out and comfortable living space.
Split Bedroom House Plan 13049 AfroHousePlans
What Is A Split Bedroom Floor Plan Pros And Cons Of Split Bedroom Plans
House Plan 5 Bedrooms 2 Bathrooms Garage 3279 Drummond House Plans
Split Bedroom Open Concept Ranch House Plans The Red Cottage
Split Bedroom Floorplans Home With Split Bedrooms





