If you’re in the market for a new home, considering a split bedroom ranch house might be just what you need. These floor plans offer a unique layout that provides privacy and convenience for homeowners.
Split bedroom ranch houses feature a master suite on one side of the house, separate from the other bedrooms. This layout is perfect for families or individuals who value their personal space and privacy.
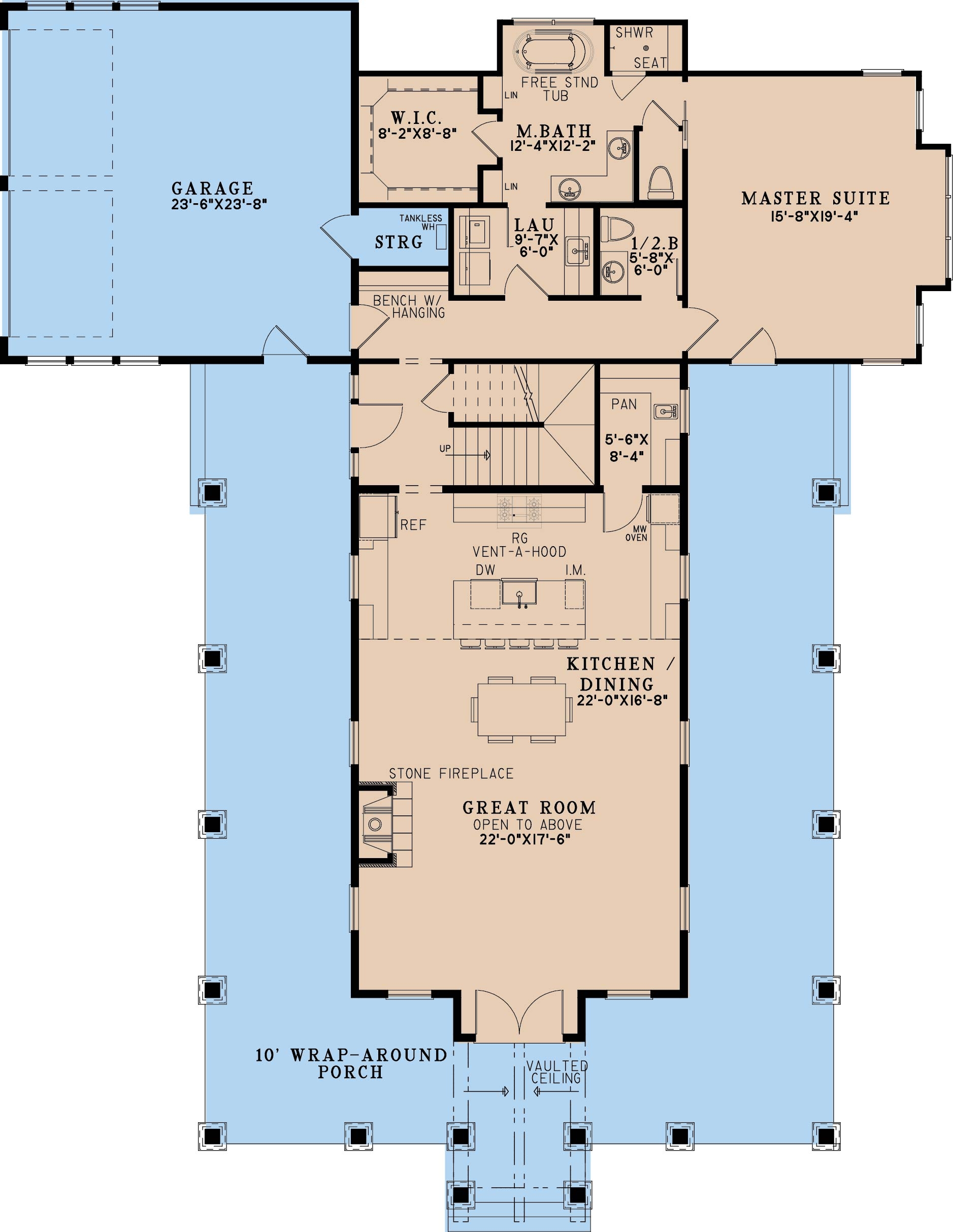
Split Bedroom Ranch House Floor Plans
Split Bedroom Ranch House Floor Plans
With a split bedroom ranch house, you can enjoy the benefits of having a peaceful retreat away from the hustle and bustle of daily life. Imagine unwinding in your spacious master suite after a long day, knowing that your family members or guests have their own space on the other side of the house.
These floor plans often feature open-concept living areas, making it easy to entertain guests or keep an eye on children while preparing meals. The layout is versatile and can be customized to suit your lifestyle and needs.
Whether you’re a first-time homebuyer or looking to downsize, a split bedroom ranch house offers a practical and functional design that maximizes space and comfort. Consider exploring this option when searching for your next home.
When it comes to finding the perfect home, split bedroom ranch house floor plans offer a unique and appealing layout that combines privacy and convenience. Explore this option to see if it’s the right fit for you and your family.
Split Bedroom Ranch HBC Homes
Plan 81264 3 Bedroom Split Level House Plan With Drive Under Ga
3 Bedroom One Story Ranch Style House Plan 6531 Plan 6531
Split Bedroom Open Concept Ranch House Plans The Red Cottage
Plan 51821HZ Split Bedroom New American Ranch Home Plan 2230 Sq Ft





