Are you dreaming of a cozy country house with split bedrooms for added privacy and space? Look no further! Split bedroom country house plans are the perfect solution for families or individuals who desire separate sleeping quarters.
These plans typically feature a master suite on one side of the house, while secondary bedrooms are located on the opposite side. This layout allows for peace and quiet, making it ideal for parents with young children or roommates sharing a home.
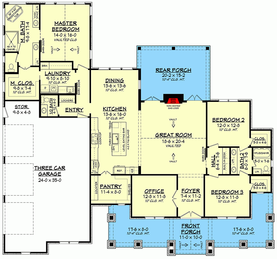
Split Bedroom Country House Plans
Exploring the Benefits of Split Bedroom Country House Plans
One of the main advantages of split bedroom floor plans is the added privacy they provide. Whether you’re hosting guests or living with family members, having separate sleeping areas can make all the difference in maintaining harmony in the home.
Additionally, split bedroom layouts often include open living spaces that bring everyone together. From spacious kitchens to inviting great rooms, these designs are perfect for entertaining and bonding with loved ones.
Furthermore, split bedroom country house plans offer flexibility for future needs. As your family grows or changes, having distinct sleeping areas can easily accommodate new arrangements without major renovations.
In conclusion, if you’re in the market for a home that offers both comfort and functionality, consider exploring split bedroom country house plans. With their thoughtful design and practical layout, these homes are sure to provide the peace and tranquility you deserve.
Split Bedroom Floor Plans Privacy Meets Practicality DFD House Plans Blog
Plan 80880 Sophisticated Modern Farmhouse With Split Bedrooms A
Farmhouse Style Country Home Plan With Split Bedroom Design
Three Bedroom Country Floor Plan With Split Bedrooms
Split Bedroom Hill Country House Plan With Large Walk in Pantry 2454 Sq Ft 51838HZ Architectural Designs House Plans





