Looking for small two-bedroom house plans in the UK? You’re in the right place! Whether you’re a first-time homebuyer, downsizing, or looking for a vacation home, these plans are perfect for those looking for a cozy living space.
Small two-bedroom house plans in the UK are ideal for those who want a compact yet functional living space. These plans typically include a living room, kitchen, two bedrooms, and a bathroom. They are perfect for individuals, couples, or small families looking for an affordable housing option.
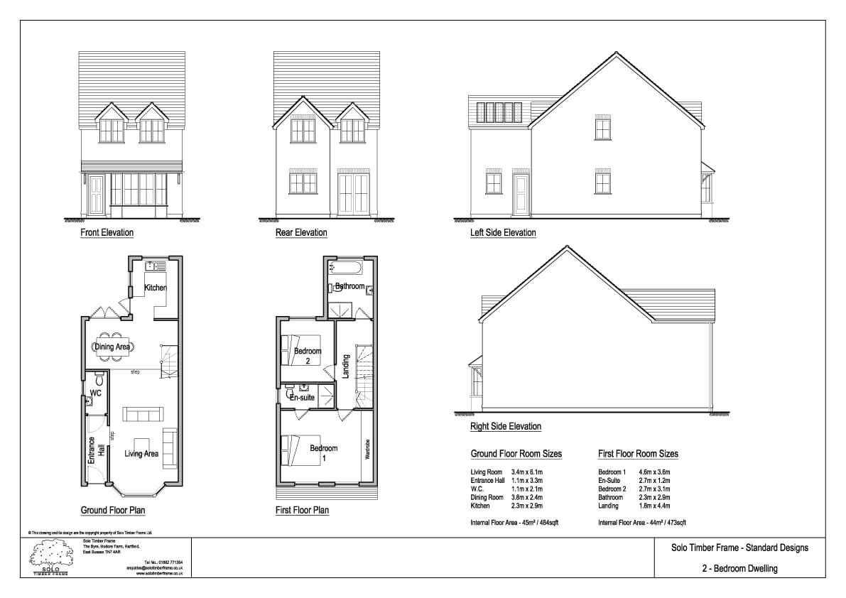
Small Two Bedroom House Plans Uk
Small Two Bedroom House Plans Uk
When it comes to designing a small two-bedroom house in the UK, it’s essential to maximize space while maintaining functionality. Consider open floor plans, built-in storage solutions, and multipurpose furniture to make the most of your living space.
Additionally, incorporating natural light through large windows and skylights can make your small two-bedroom house feel more spacious and inviting. Choosing neutral colors and minimalist decor can also create a sense of openness and airiness in your home.
With the right small two-bedroom house plan in the UK, you can enjoy a comfortable and stylish living space that meets your needs without breaking the bank. So, whether you’re looking to downsize or just starting out, these plans offer the perfect solution for your housing needs.
Explore small two-bedroom house plans in the UK today and find the perfect design that suits your lifestyle and budget. With a little creativity and smart design choices, you can create a cozy and welcoming home that you’ll love coming back to every day.
Modern Small 2 Bedroom 2 Bathroom House Design Under 1500 Sq Foot House Plan Or 109 3 M2 Cheap Construction Costs House Plans Etsy UK
Two Bedroom Bungalow Plans The Brierley Houseplansdirect
HOUSE PLAN 201027 tiny House 2 Bedrooms 1 5 Bathrooms Pdf Floor Plan Instant Download CUSTOM Plans Service Etsy UK
Narrow Pine I Two Level 2 Bed ADU 55×14 Custom House Plans And Blueprints Etsy UK
Townsend 2 2 Bedroom House Design Designs Solo Timber Frame Homes





