If you’re considering building a small 2 bedroom bungalow, you’re in the right place! These cozy homes are perfect for couples, small families, or individuals looking for a simpler way of living.
With the right small 2 bedroom bungalow house plans, you can create a space that is both functional and stylish. Whether you prefer a modern design or a more traditional look, there are plenty of options to choose from.
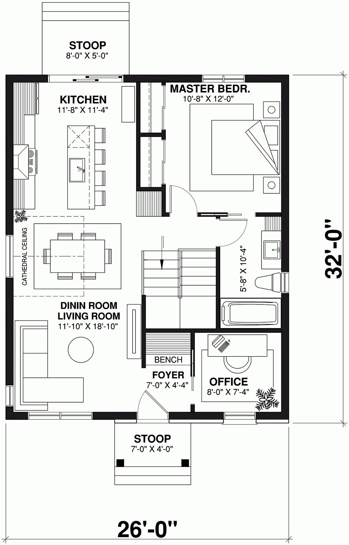
Small 2 Bedroom Bungalow House Plans
Small 2 Bedroom Bungalow House Plans
One popular layout for a small 2 bedroom bungalow is to have the bedrooms on one side of the house and the living spaces on the other. This design allows for privacy and separation between sleeping and entertaining areas.
Another option is to have an open-concept layout, where the kitchen, dining, and living areas flow seamlessly into one another. This layout can make a small space feel more spacious and airy.
When choosing small 2 bedroom bungalow house plans, consider your lifestyle and needs. Do you need a home office space? A mudroom for storing shoes and coats? Make sure the plans you choose have the features that are important to you.
Overall, building a small 2 bedroom bungalow can be a rewarding experience. With the right plans and design choices, you can create a home that is perfect for your needs and reflects your personal style.
Plan 75517 Bungalow Style With 2 Bed 1 Bath
Peralta 2 Bedroom Bungalow House Design Pinoy EPlans
Small Bungalow House Plans
Plan 81833 Cute Small 2 Bedroom Country Bungalow House Plan Wit
House Plan 75517 Bungalow Style With 912 Sq Ft 2 Bed 1 Bath





