Looking for the perfect single-story house plans with 3 bedrooms? You’re in luck! These types of homes are not only popular but also incredibly functional and convenient for families of all sizes. With a spacious layout and all the essential rooms on one floor, you can enjoy easy living without the hassle of stairs.
Single-story house plans with 3 bedrooms are ideal for those who prefer a more open and accessible living space. Whether you’re a young family looking for room to grow or empty nesters wanting to downsize, these floor plans offer the perfect balance of comfort and style.
Single Story House Plans 3 Bedroom
Discover the Benefits of Single Story House Plans 3 Bedroom
One of the main advantages of a single-story house plan with 3 bedrooms is the ease of navigation and accessibility. With everything on one level, you can move freely from room to room without the need to climb stairs. This layout is especially beneficial for older adults or individuals with mobility issues.
Additionally, single-story homes are often more energy-efficient than multi-story houses, as they have a smaller footprint and require less heating and cooling. With less space to heat or cool, you can enjoy lower utility bills and a more environmentally friendly home.
Furthermore, single-story house plans with 3 bedrooms offer plenty of design flexibility. From traditional ranch-style homes to modern open-concept layouts, you can find a floor plan that suits your unique taste and lifestyle. With options for customization and personalization, you can create the perfect space for you and your family to call home.
So, if you’re in the market for a new home, consider the benefits of single-story house plans with 3 bedrooms. With their functional layout, accessibility, energy efficiency, and design flexibility, these homes are an excellent choice for anyone looking for a comfortable and convenient living space.
26×36 Ft 3 Bedroom Single Story Small House Plan Modern Architectural Design Tiny Cabin Floor Plans Pdf Printable Blueprint For Sale Etsy
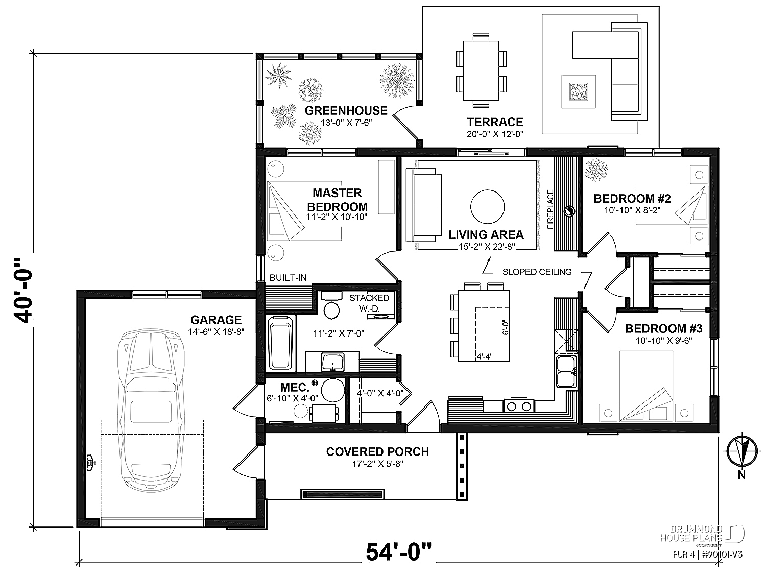
House Plan 3 Bedrooms 1 Bathrooms Garage 90101 V3 Drummond House Plans
House Plan 77400 Ranch Style With 1311 Sq Ft 3 Bed 2 Bath
Best 3 Bedroom One Floor House Plans
Simple House Plans Clutter Free 3 Bedroom House Plans Nethouseplans





