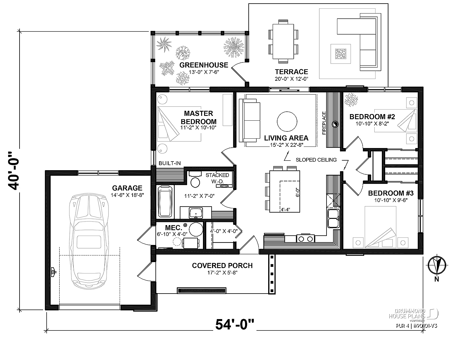
Simple House Plan With 3 Bedrooms