Looking for simple and easy-to-follow 4 bedroom house plans in PDF format? You’ve come to the right place! Whether you’re a first-time homebuyer or looking to upgrade your current space, these plans are perfect for anyone looking to build their dream home.
With our collection of 4 bedroom house plans in PDF, you can easily visualize the layout of your future home. These plans are designed to be straightforward and user-friendly, making the building process as smooth as possible. Say goodbye to complicated blueprints and hello to simplicity!
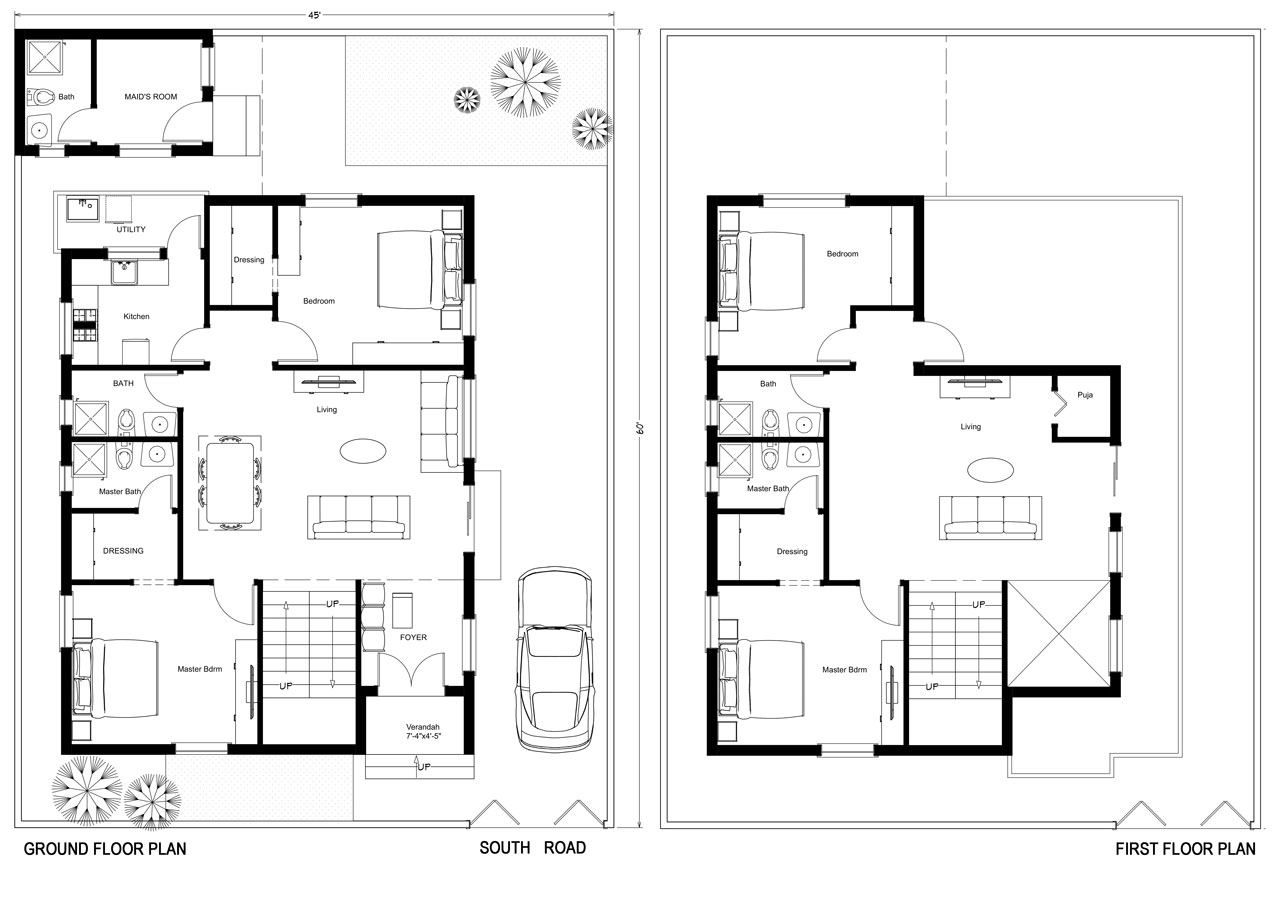
Simple 4 Bedroom House Plans Pdf
Simple 4 Bedroom House Plans Pdf
Our simple 4 bedroom house plans in PDF offer a variety of layouts to suit your needs. From traditional to modern designs, you’ll find the perfect plan to fit your style and budget. Each plan comes with detailed measurements and room configurations, making it easy to customize to your liking.
Whether you’re looking for a spacious family home or a cozy retreat, our 4 bedroom house plans in PDF have something for everyone. With clear and concise instructions, you’ll be on your way to building your dream home in no time. Say goodbye to stress and hello to simplicity with our easy-to-use plans!
So why wait? Start planning your future home today with our simple 4 bedroom house plans in PDF. With just a few clicks, you’ll be on your way to turning your dreams into reality. Don’t let complicated blueprints hold you back – choose simplicity and ease with our user-friendly plans!
Modern House Plans 4 Bedroom House Plans Dream Home Design Functional House Layout Residential Floor Plan Architectural Blueprints Etsy
Plan 45467 4 Bedroom Classic Ranch House Plan With Covered Porc
4 Bedroom House Plans Houzone
4 Bedroom Bungalow plan With Measurement
40 X 60 Modern House Architectural House Plans 4 Bedroom PDF Download EBay





