Looking for a cozy and practical home design? Consider simple 4 bedroom bungalow house plans. These layouts offer spacious living areas and comfortable bedrooms, perfect for families or anyone looking for a relaxed lifestyle.
With a single-story design, bungalow house plans are ideal for those who prefer easy accessibility and a seamless flow between rooms. The 4 bedrooms provide ample space for family members, guests, or even an office or hobby room.
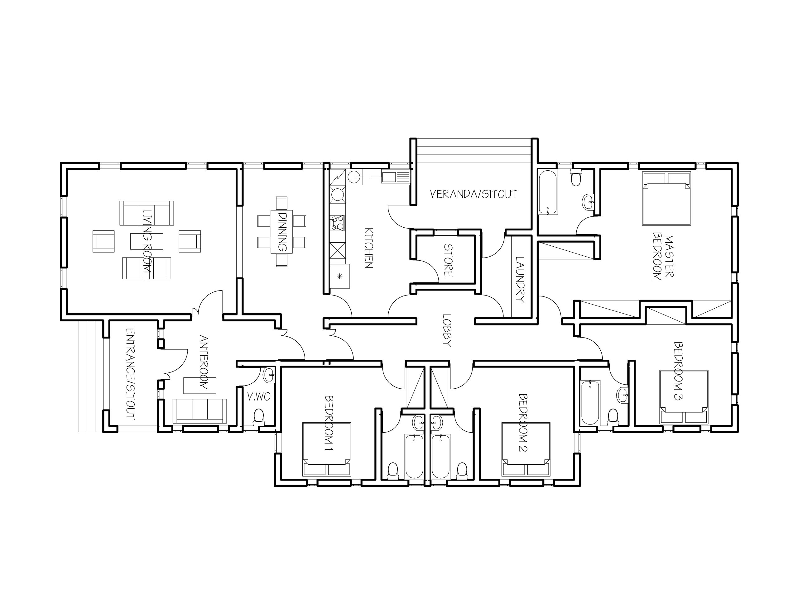
Simple 4 Bedroom Bungalow House Plans
Simple 4 Bedroom Bungalow House Plans
These house plans often feature open-concept layouts, allowing for a bright and airy feel throughout the home. With a focus on simplicity and functionality, bungalow designs prioritize comfort and practicality, making them a popular choice for many homeowners.
From charming front porches to cozy breakfast nooks, bungalow house plans offer a variety of features that enhance everyday living. Whether you’re hosting a family gathering or enjoying a quiet evening at home, these designs create a warm and inviting atmosphere.
Plus, with fewer stairs to navigate, bungalow house plans are a great option for those looking to age in place or accommodate family members with mobility challenges. Their single-story layout makes them accessible and convenient for all.
Consider simple 4 bedroom bungalow house plans for a comfortable and inviting living space that meets your needs and lifestyle. With their practical design and cozy atmosphere, these homes offer the perfect combination of style and functionality for modern living.
4 Bedrooms Bungalow House Plan AfroHousePlans
Outstanding 4 Bedroom Bungalow Floor Plan Sample
V 403 Bungalow Blueprints Floor Plan Modern One Story House Plan
4 Bedroom Bungalow plan With Measurement
Gorgeous Four bedroom Bungalow





