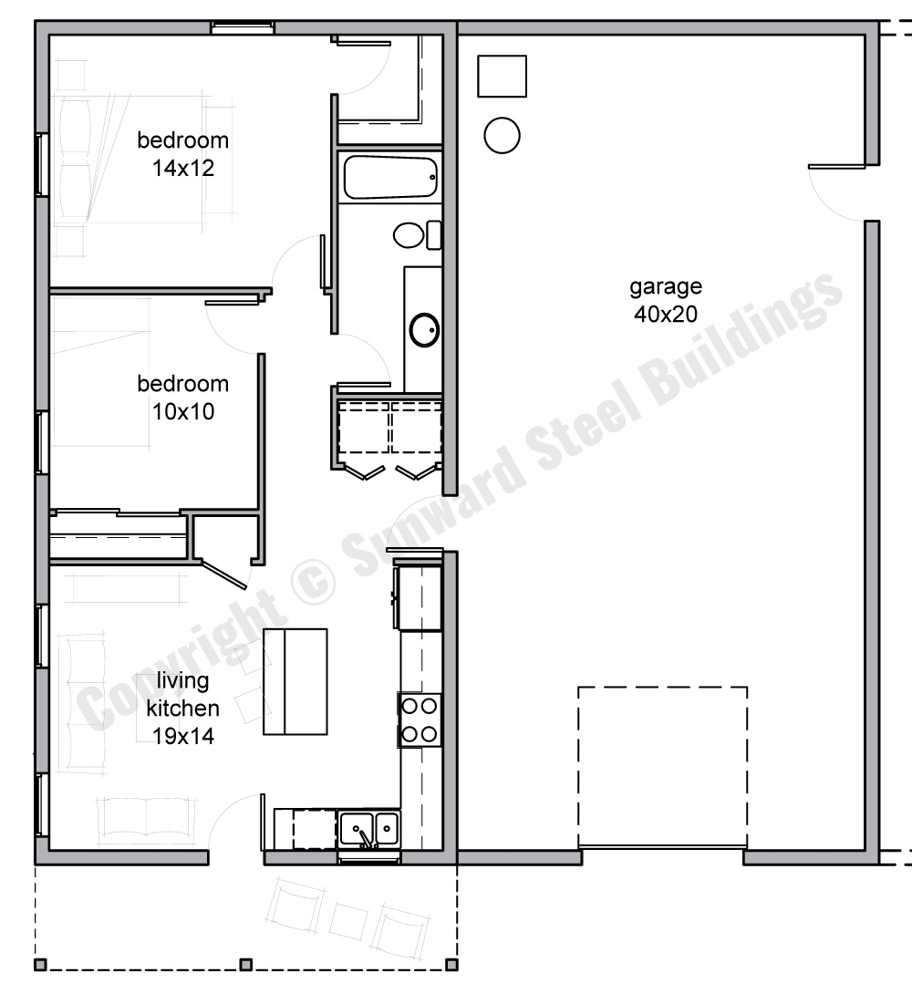
Shop House Plans 2 Bedroom