Scandinavian design is known for its simplicity, functionality, and beauty. Many homeowners are drawn to this style, especially when considering spacious living options. One popular choice is the Scandinavian house plans featuring four bedrooms.
These plans offer a perfect blend of modern aesthetics and practical layouts. Families appreciate the open spaces and natural light that characterize Scandinavian homes, making them ideal for both relaxation and entertaining.
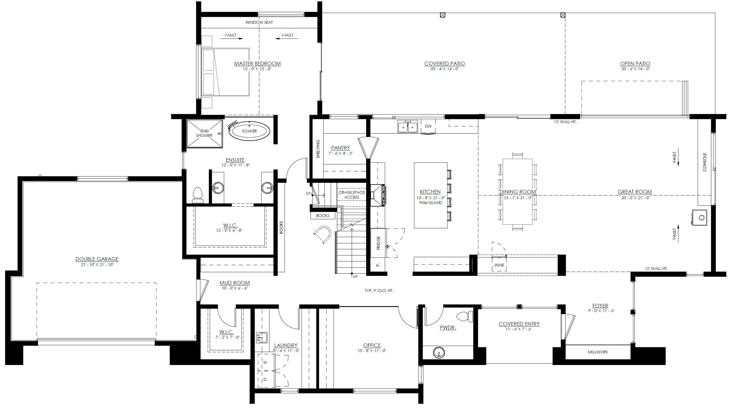
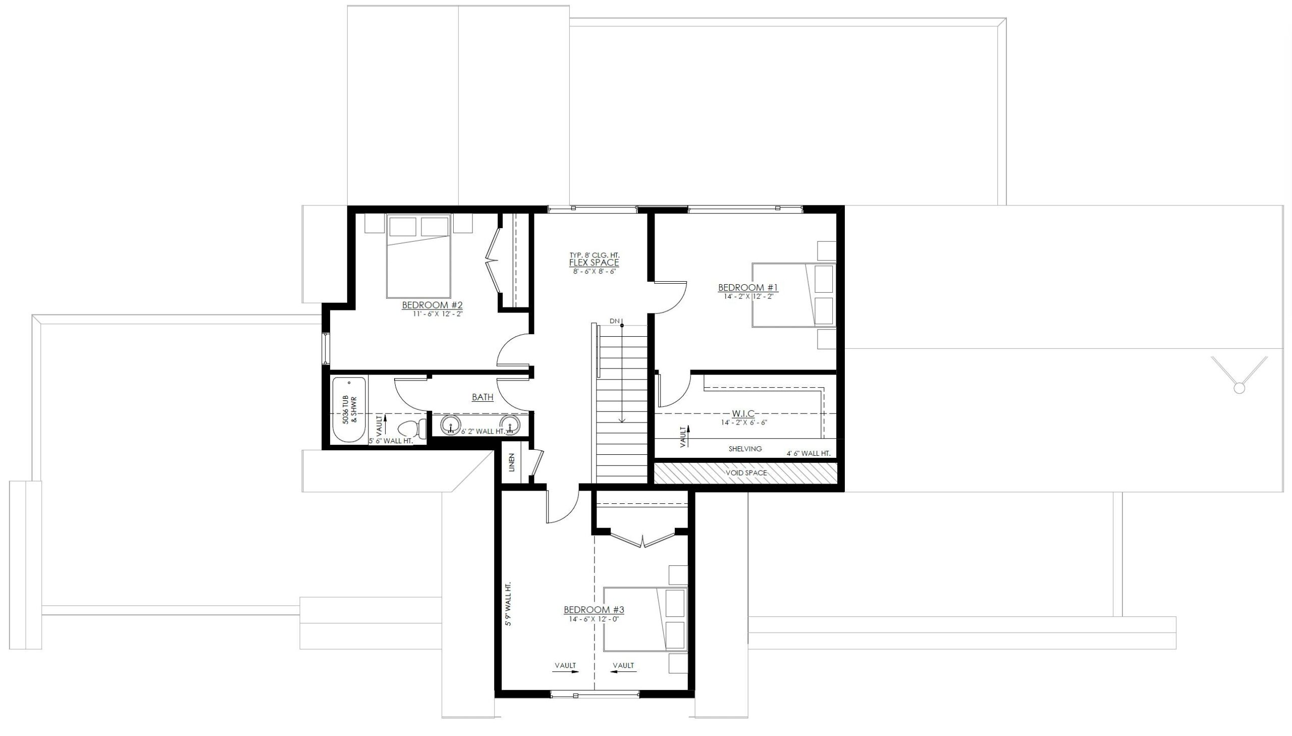
Scandinavian House Plans 4 Bedroom
Scandinavian House Plans 4 Bedroom
When exploring Scandinavian house plans with four bedrooms, you’ll find various designs that cater to different lifestyles. Many feature large windows, allowing ample sunlight to brighten the interiors while connecting the indoors with nature.
Another appealing aspect is the use of sustainable materials. Wood, stone, and eco-friendly elements are often incorporated into these designs, promoting a healthy living environment. This commitment to sustainability resonates with many modern families.
Additionally, these homes typically include open-concept living areas that enhance social interaction. The seamless flow between the kitchen, dining, and living spaces creates a warm atmosphere perfect for family gatherings or entertaining friends.
In conclusion, Scandinavian house plans with four bedrooms offer a stylish and functional solution for families seeking comfort and elegance. With their focus on sustainability and open spaces, these designs are sure to inspire your dream home.
