Are you dreaming of building your own cozy Scandinavian-style home? Look no further than Scandinavian House Plans 4 Bedroom for the perfect blend of modern design and functionality. With clean lines, natural materials, and a focus on simplicity, these house plans are ideal for those looking to create a peaceful retreat.
Scandinavian design is known for its minimalistic approach, creating spaces that are both stylish and functional. The 4-bedroom layout offers plenty of room for a growing family or guests, while still maintaining that signature Scandinavian charm. Imagine waking up to the soft glow of natural light streaming in through large windows, or enjoying a cup of coffee on your spacious deck overlooking the serene landscape.
Scandinavian House Plans 4 Bedroom
Scandinavian House Plans 4 Bedroom: Features and Benefits
One of the key features of Scandinavian house plans is the use of natural materials such as wood, stone, and glass. This creates a warm and inviting atmosphere that is perfect for relaxing and unwinding after a long day. The open-concept layout allows for easy flow between rooms, making it ideal for entertaining or spending quality time with loved ones.
In addition to the aesthetic appeal, Scandinavian house plans are also designed with energy efficiency in mind. From high-quality insulation to energy-efficient appliances, these homes are built to help reduce your carbon footprint and save you money on utility bills. You can feel good about living in a space that is not only beautiful but also environmentally friendly.
So why wait? Start planning your dream Scandinavian home today with Scandinavian House Plans 4 Bedroom. Embrace the simplicity, functionality, and beauty of Scandinavian design and create a space that you’ll love coming home to every day.
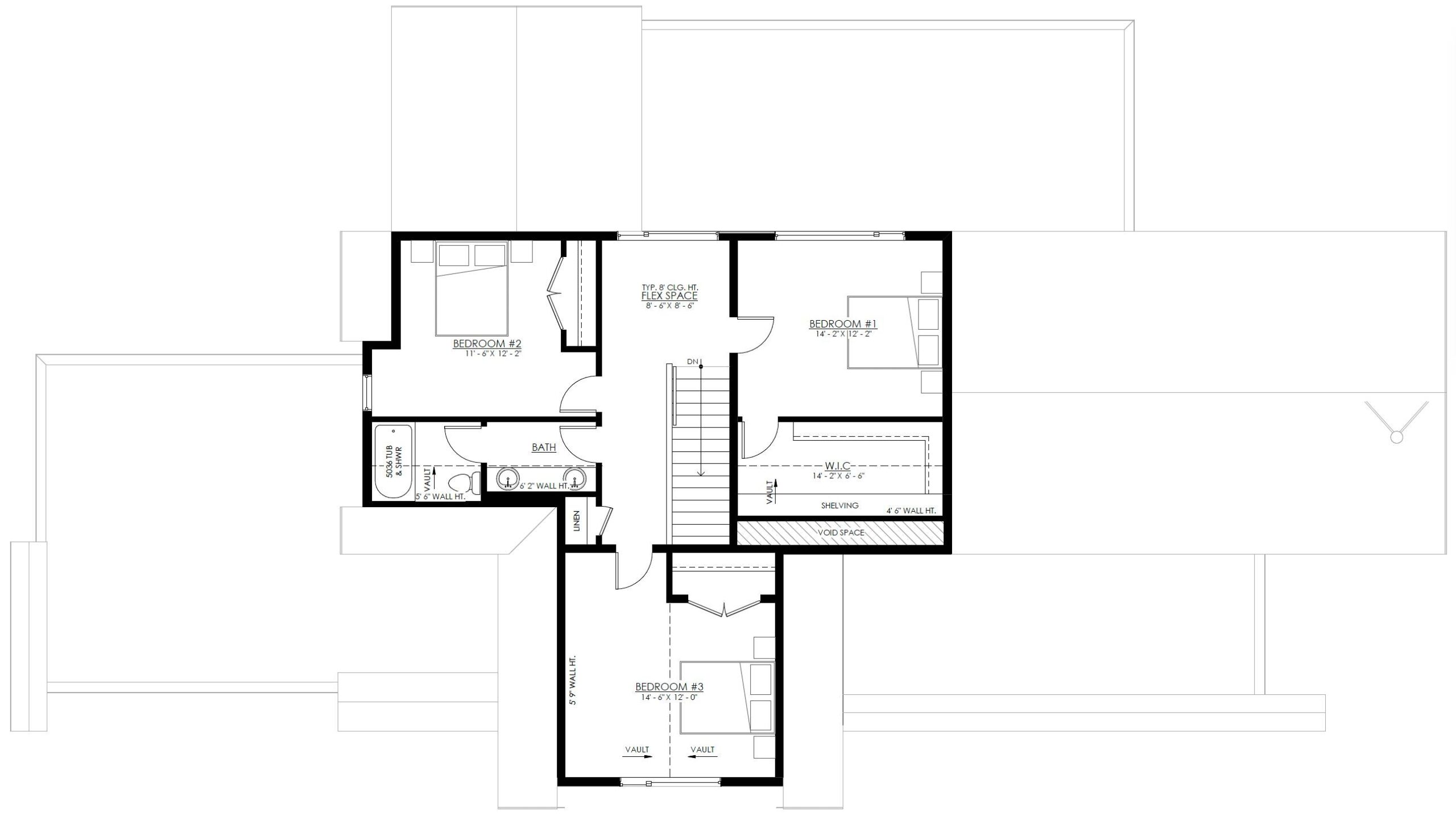
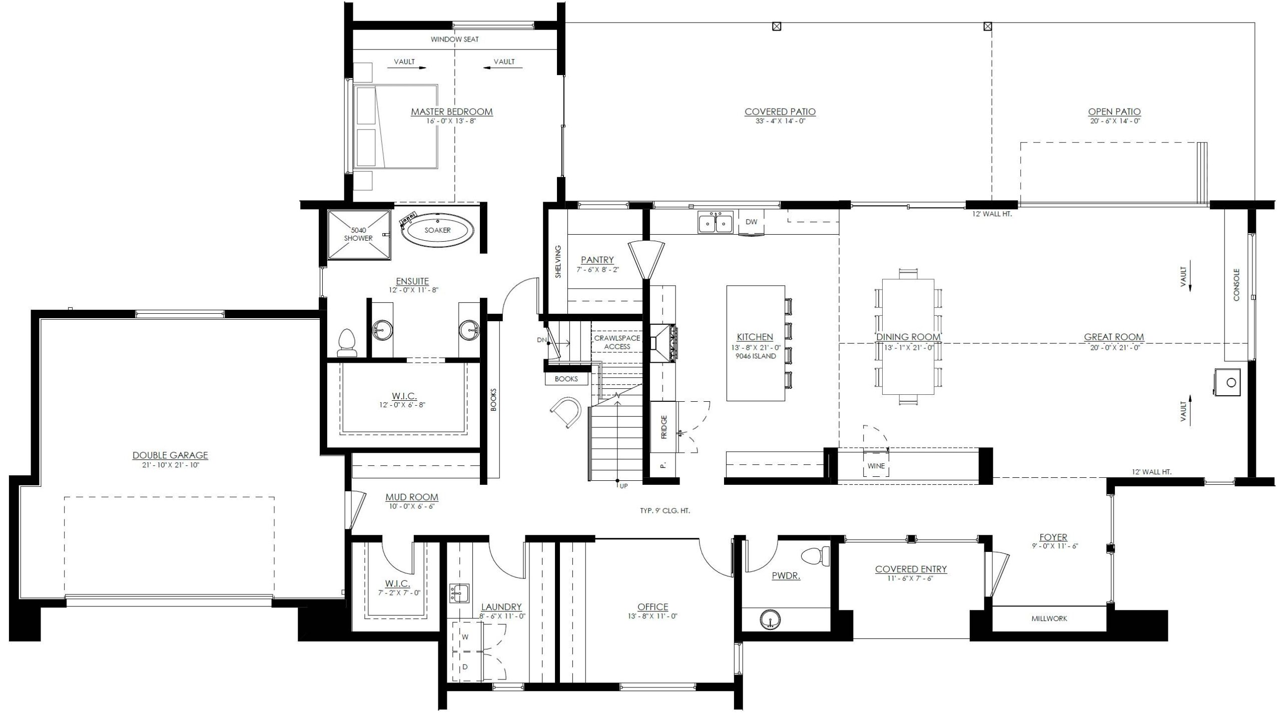
Plan 623164DJ Modern Scandinavian House Plan With 4 Beds And 2 Story Great Room 3300 Sq Ft
Symmetrical Scandinavian House Plan With Split Beds And Vaulted
Truoba Mini 222 Modern Scandinavian House
4 Bedroom Scandinavian Style House Plan 9161 Plan 9161
4 Bedroom Scandinavian Style House Plan 9161 Plan 9161





