Finding the perfect home design can be a challenge, especially when considering family needs and lifestyle. Rectangular house plans are a popular choice for many, offering both functionality and aesthetic appeal. These designs maximize space while providing a modern look.
When it comes to larger families, having enough bedrooms is essential. Four-bedroom layouts are ideal for accommodating everyone comfortably. They provide ample room for children, guests, or even a home office, making them versatile for various needs.
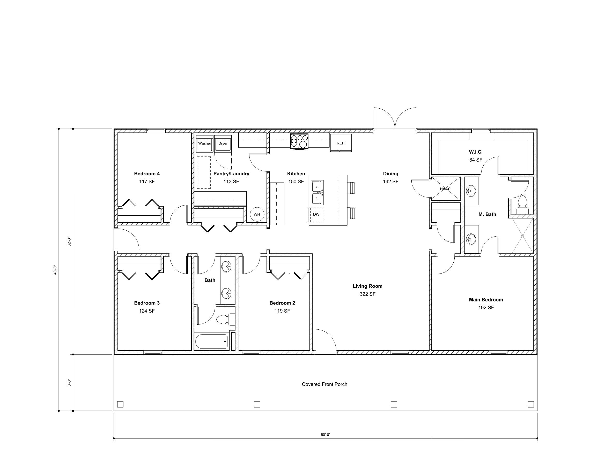
Rectangular House Plans 4 Bedroom
Rectangular House Plans 4 Bedroom
Rectangular house plans with four bedrooms often feature open-concept living areas. This design encourages family interaction while keeping the kitchen and dining areas connected. Such layouts create a welcoming atmosphere for gatherings and everyday life.
Another advantage of these plans is their efficient use of space. The rectangular shape allows for straightforward construction and easy navigation throughout the home. This efficiency can lead to cost savings in both building and maintenance.
Additionally, many rectangular house plans include outdoor spaces like patios or decks. These areas enhance the living experience by providing a place to relax or entertain guests. A well-designed outdoor space can significantly increase your home’s value.
Choosing a rectangular house plan with four bedrooms can be a smart investment for families looking to grow. With their practical designs and spacious layouts, these homes offer comfort and style for years to come.
