If you’re in the market for a new home and looking for something with a cozy and inviting vibe, ranch house plans with basement bedrooms might be just what you need. These types of homes offer a spacious layout with the convenience of having bedrooms in the basement.
With ranch house plans, you can enjoy the benefits of single-story living while also having the option of extra bedrooms in the basement for guests or family members. This versatile layout allows for privacy and comfort for everyone in the household.
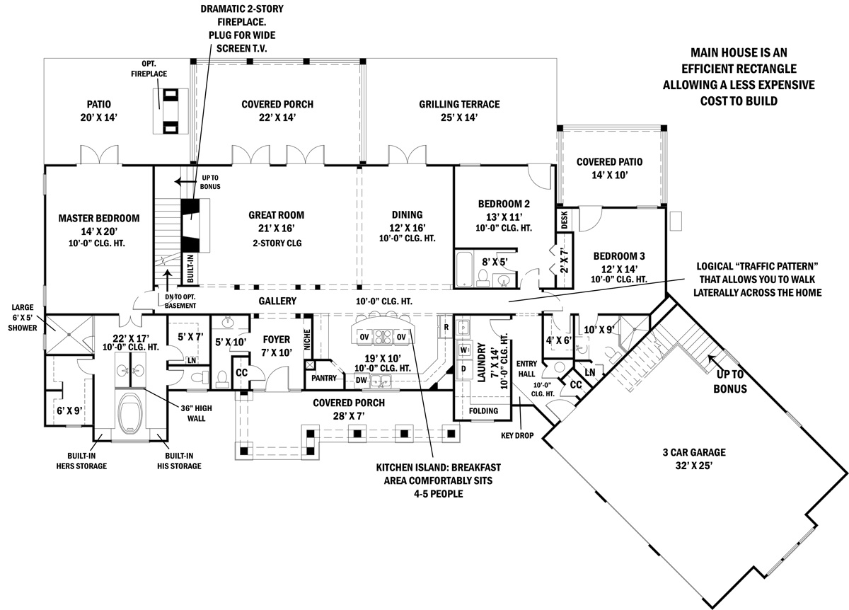
Ranch House Plans With Basement Bedrooms
Ranch House Plans With Basement Bedrooms
Having bedrooms in the basement of a ranch house provides additional living space without sacrificing the main floor’s functionality. This setup is perfect for families with teenagers who want their own space or for hosting overnight guests.
Basement bedrooms in ranch house plans offer a quiet retreat away from the main living areas, making them ideal for relaxation and privacy. You can customize the basement bedrooms to suit your needs, whether it’s a cozy guest room or a spacious master suite.
Overall, ranch house plans with basement bedrooms are a great option for those looking for a practical and flexible living arrangement. With the convenience of having bedrooms in the basement, you can make the most of your home’s space and create a comfortable environment for everyone in your household.
Consider exploring ranch house plans with basement bedrooms if you’re in the market for a new home that offers both convenience and versatility. These layouts provide a cozy and welcoming atmosphere that is perfect for families of all sizes.
Plan 51854 Mountain House Plan With Walkout Basement
3 Bedroom One Story Ranch Style House Plan 6531 Plan 6531
Ranch House Plan With 3 Bedrooms And 3 5 Baths Plan 4445
Luxury Ranch Home Plan With Walkout Basement 64522SC Architectural Designs House Plans
Plan 50531 6 Bedroom Ranch House Plan With Basement





