Are you planning to build a 2-bedroom house that is both cozy and functional? Look no further! With the right plans, you can create a space that meets all your needs and fits your lifestyle perfectly.
Designing a 2-bedroom house 32×24 can be a fun and exciting project. Whether you’re building a vacation home, a rental property, or your primary residence, having a clear plan in place is essential to ensure everything goes smoothly.
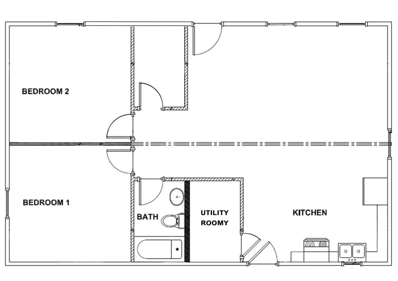
Plans For 2 Bedroom House 32×24
Plans For 2 Bedroom House 32×24
When considering the layout of your 2-bedroom house, think about how you want to use each space. Do you need a larger kitchen for entertaining? Or maybe a spacious living room for relaxing with family and friends? The key is to prioritize what matters most to you.
With a 32×24 footprint, you have plenty of room to work with. Consider adding a deck or patio for outdoor living, or a loft area for additional storage or living space. The options are endless when it comes to customizing your home to suit your needs.
When choosing plans for your 2-bedroom house, make sure to work with a reputable architect or designer who understands your vision. They can help you bring your ideas to life and create a space that is both functional and aesthetically pleasing.
In conclusion, designing a 2-bedroom house 32×24 is an exciting opportunity to create a space that truly reflects your lifestyle and preferences. With the right plans and a clear vision in mind, you can build a home that you will love for years to come.
Best 24 X 32 East Facing House Plan Plan No 257
Sample Floor Plans Canada Knotty Pine Cabins
AmeriPanel Homes Of South Carolina Ranch Floor Plans
Plan 81504 Modern Garage Apartment Plan With 2 Bedrooms
24X32 Modern House Design DK Home DesignX





