Are you thinking about building a one-bedroom house? It’s a great idea for those looking to downsize or have a cozy space of their own. A one-bedroom house can be charming and practical, perfect for singles, couples, or even as a guesthouse.
When planning a one-bedroom house, it’s essential to consider the layout and design carefully. You want to make the most of the space you have while ensuring it meets your needs and preferences. From the floor plan to the interior design, every detail matters in creating a comfortable and functional living space.
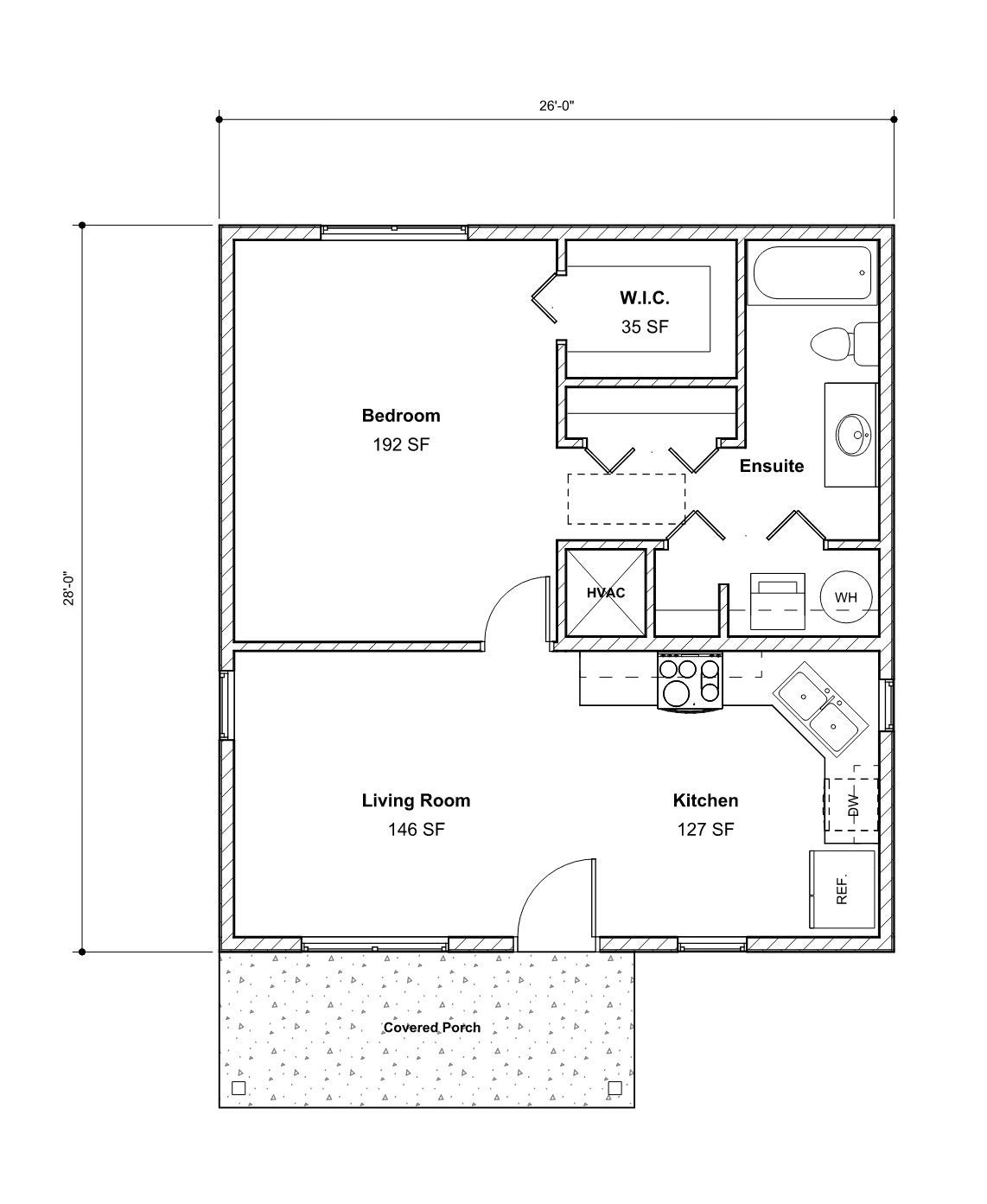
Plan Of One Bedroom House
Plan Of One Bedroom House
Start by sketching out the floor plan of your one-bedroom house. Consider the placement of rooms, windows, and doors to maximize natural light and airflow. Think about how you will use each space, from the bedroom to the living room, kitchen, and bathroom.
When it comes to the design of a one-bedroom house, simplicity is key. Opt for clean lines, neutral colors, and minimalistic furniture to create an open and airy feel. Use clever storage solutions to maximize space, such as built-in cabinets, shelves, and multifunctional furniture.
Don’t forget about the exterior of your one-bedroom house. Choose a style that complements your preferences and the surrounding landscape. Consider adding a small porch, balcony, or garden to enhance the curb appeal and create a cozy outdoor space for relaxation.
In conclusion, designing a one-bedroom house requires careful planning and attention to detail. By creating a functional layout, choosing a simple yet stylish design, and enhancing the exterior, you can create a beautiful and comfortable living space that suits your lifestyle and preferences.
1 Bedroom Apartment House Plans
One Bedroom House Plans Peggy
1 Bedroom House Plan Examples
Cozy 1 Bedroom 1 Bath Floor Plan House Plan 750 Sq Ft The
Simple One Bedroom House Plans Eliana





