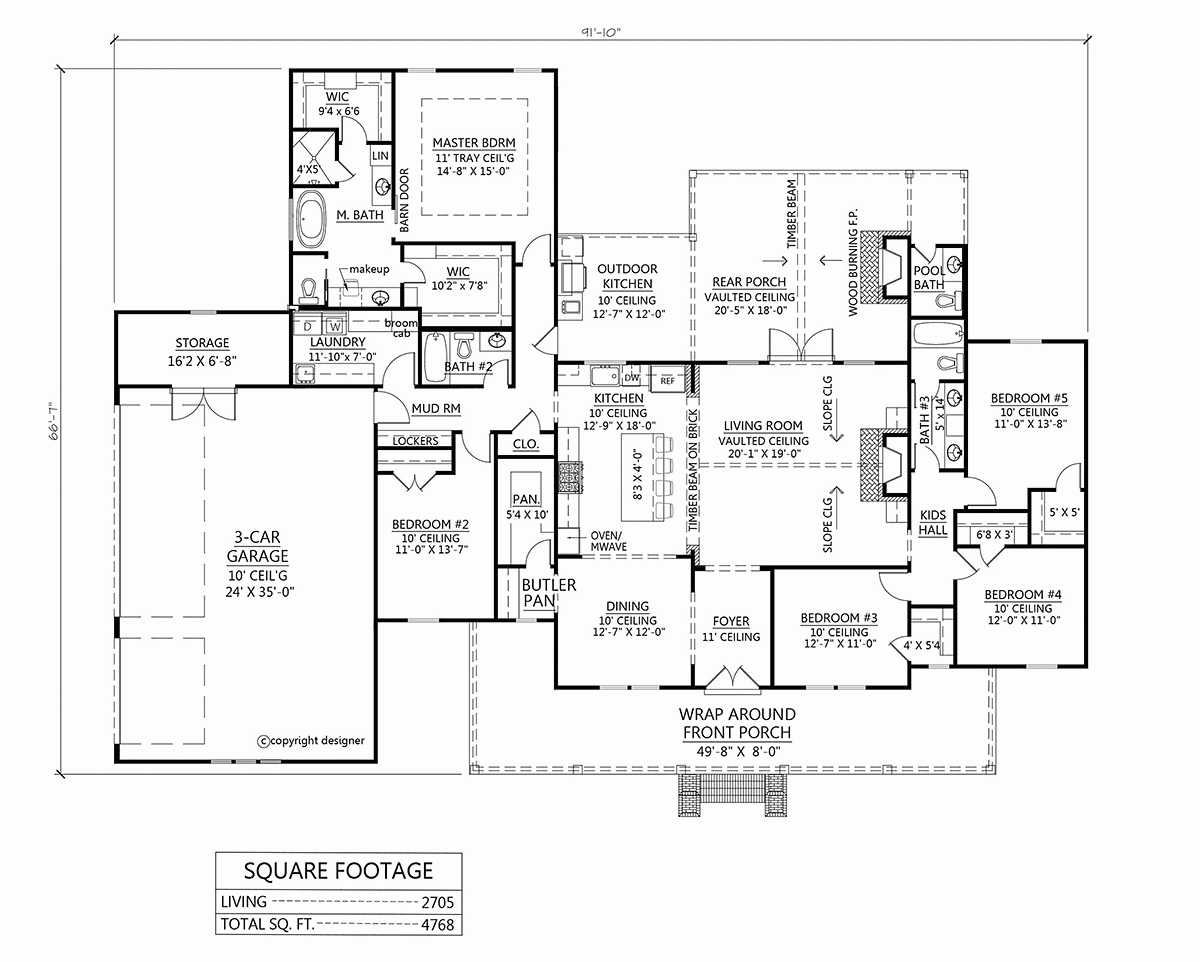
Plan House 5 Bedroom