Are you considering building a 3-bedroom house? Planning is key to creating a space that suits your needs and lifestyle. From layout design to budgeting, each step is important in bringing your dream home to life.
Before diving into the specifics, think about how you envision your future home. Consider factors like family size, future growth, and desired amenities. These insights will help you tailor your plan to meet your unique requirements.
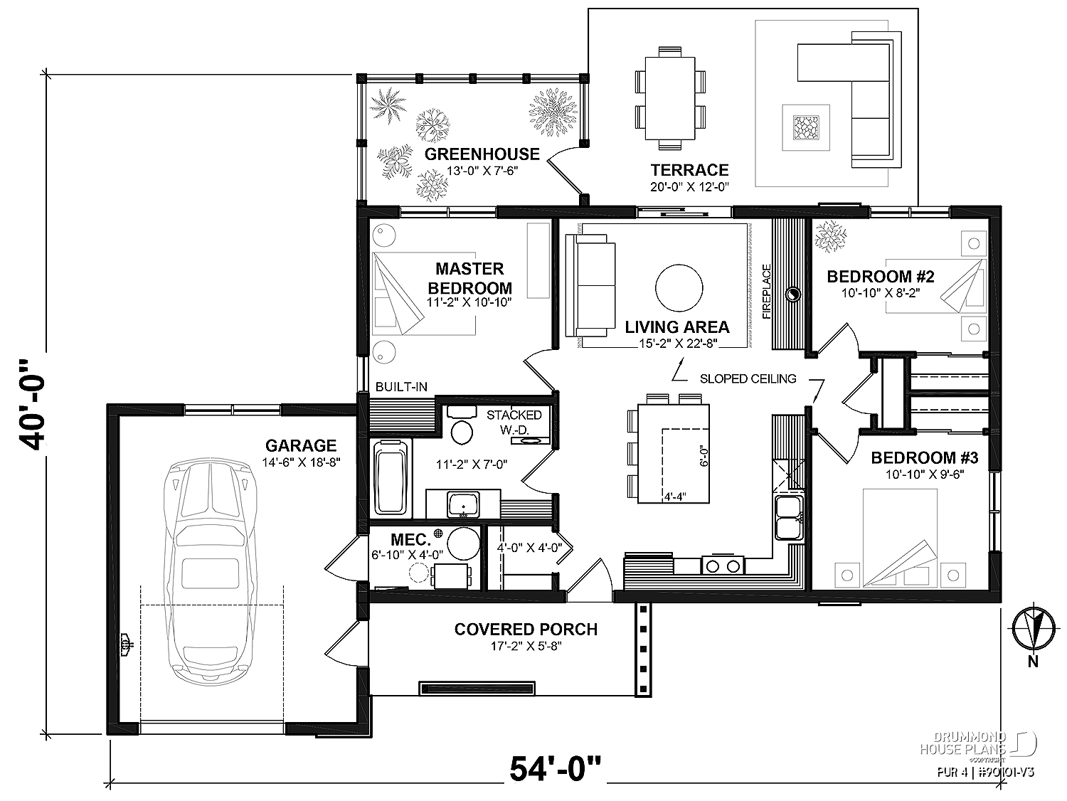
Plan For A 3 Bedroom House
Plan For A 3 Bedroom House
Start by sketching out a rough floor plan that outlines the placement of rooms, bathrooms, and common areas. This will give you a visual representation of the space and help you identify any potential design challenges.
Once you have a basic layout in mind, it’s time to consider the finer details. Think about storage needs, natural light, and traffic flow within the house. These factors can greatly impact the functionality and comfort of your home.
Don’t forget to set a realistic budget for your project. Factor in costs for construction, materials, permits, and any additional features you plan to include. Sticking to a budget will ensure that your dream home remains within reach.
In conclusion, planning for a 3-bedroom house requires careful consideration and attention to detail. By taking the time to map out your vision and budget, you can create a space that meets your needs and reflects your personal style. Start your planning process today and watch your dream home come to life!
House Plan 3 Bedrooms 1 Bathrooms Garage 90101 V3 Drummond House Plans
Our Top Five 3 Bedroom House Plans
House Plans In Kenya The Concise 3 Bedroom Bungalow House Plan David Chola Architect
House Plans 3 Bedroom Bungalow ID 122 Nyolenju
3 Bedroom House Plans PDF Download Home Designs Nethouseplans





