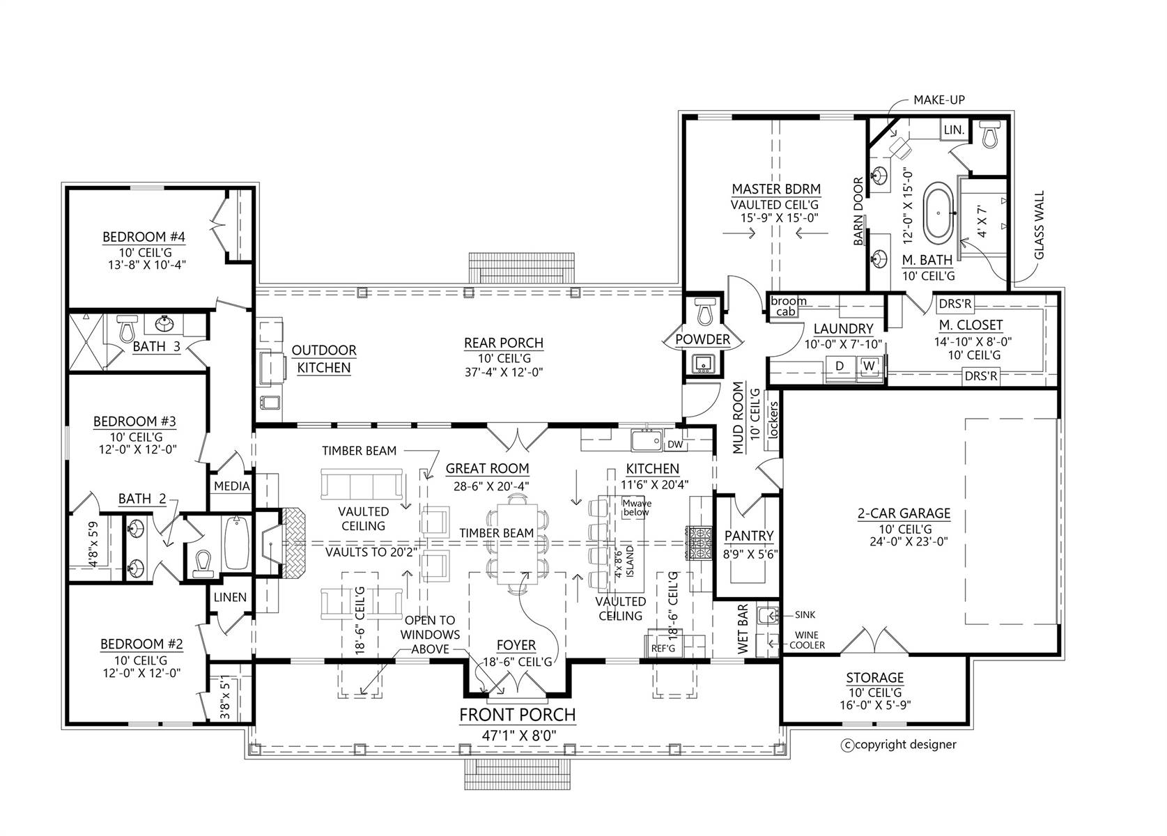
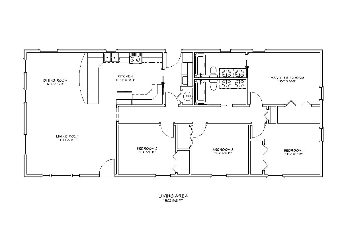
One Storey 4 Bedroom House Plans