Looking for the perfect home design that suits your family’s needs? One storey 4 bedroom house plans might be the ideal choice for you. With ample space and convenience, these floor plans offer a comfortable living environment for families of all sizes.
One storey 4 bedroom house plans are popular for their efficient use of space and practical layout. These designs typically feature an open floor plan, making it easy to move between rooms and creating a spacious feel throughout the home. Additionally, having all bedrooms on one level can be a great convenience for families with young children or elderly family members.
One Storey 4 Bedroom House Plans
One Storey 4 Bedroom House Plans
Whether you’re looking for a cozy family home or a spacious layout for entertaining guests, one storey 4 bedroom house plans offer a variety of options to suit your needs. From modern designs to traditional styles, there is a floor plan to match every taste and preference.
With four bedrooms, you’ll have plenty of space for a growing family, guests, or even a home office. The versatility of these floor plans allows you to customize the space to fit your lifestyle, whether you need extra storage, a playroom for the kids, or a quiet retreat for relaxation.
Overall, one storey 4 bedroom house plans provide the perfect balance of functionality and comfort. With their spacious layouts and convenient design, these floor plans are a popular choice for families looking for a home that meets all their needs. Consider exploring these options for your next home project!
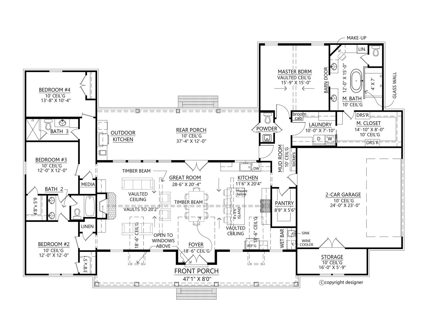
One Story 4 Bedroom Farm House Style House Plan 8817 Plan 8817
4 Bedroom House Plans Truoba Architect
4 Bedroom House Plans Wilson Homes
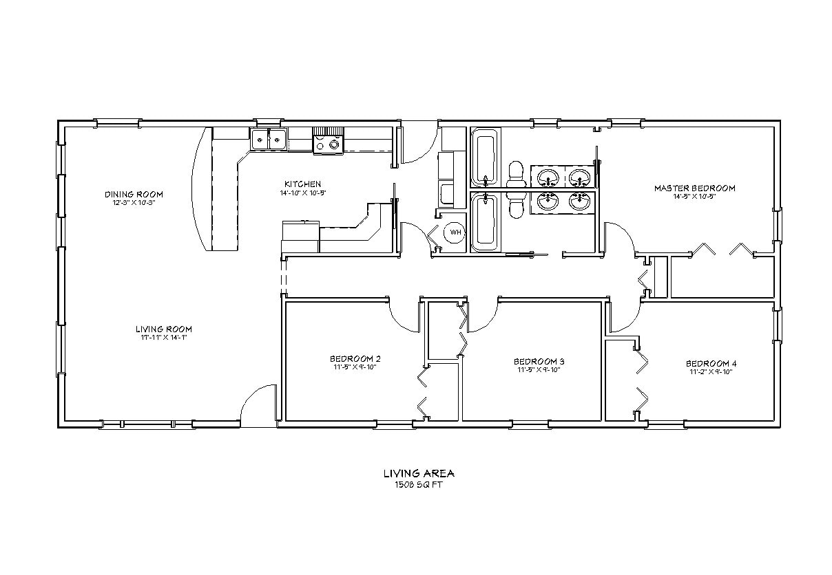
4 Bedroom 2 Bath Ranch Style Architectural Plans 1508 SF 60 x25 One Story House Plans Compact Family Floor Plan Digital Blueprint PDF Etsy
4 Bedroom House Single Storey House Plans





