Thinking of designing a cozy and functional one-bedroom row house? Look no further! A well-thought-out floor plan is key to maximizing space and creating a comfortable living environment.
With a one-bedroom row house floor plan, you can make the most of every square foot. From clever storage solutions to open-concept layouts, there are endless possibilities to customize your space to suit your lifestyle.
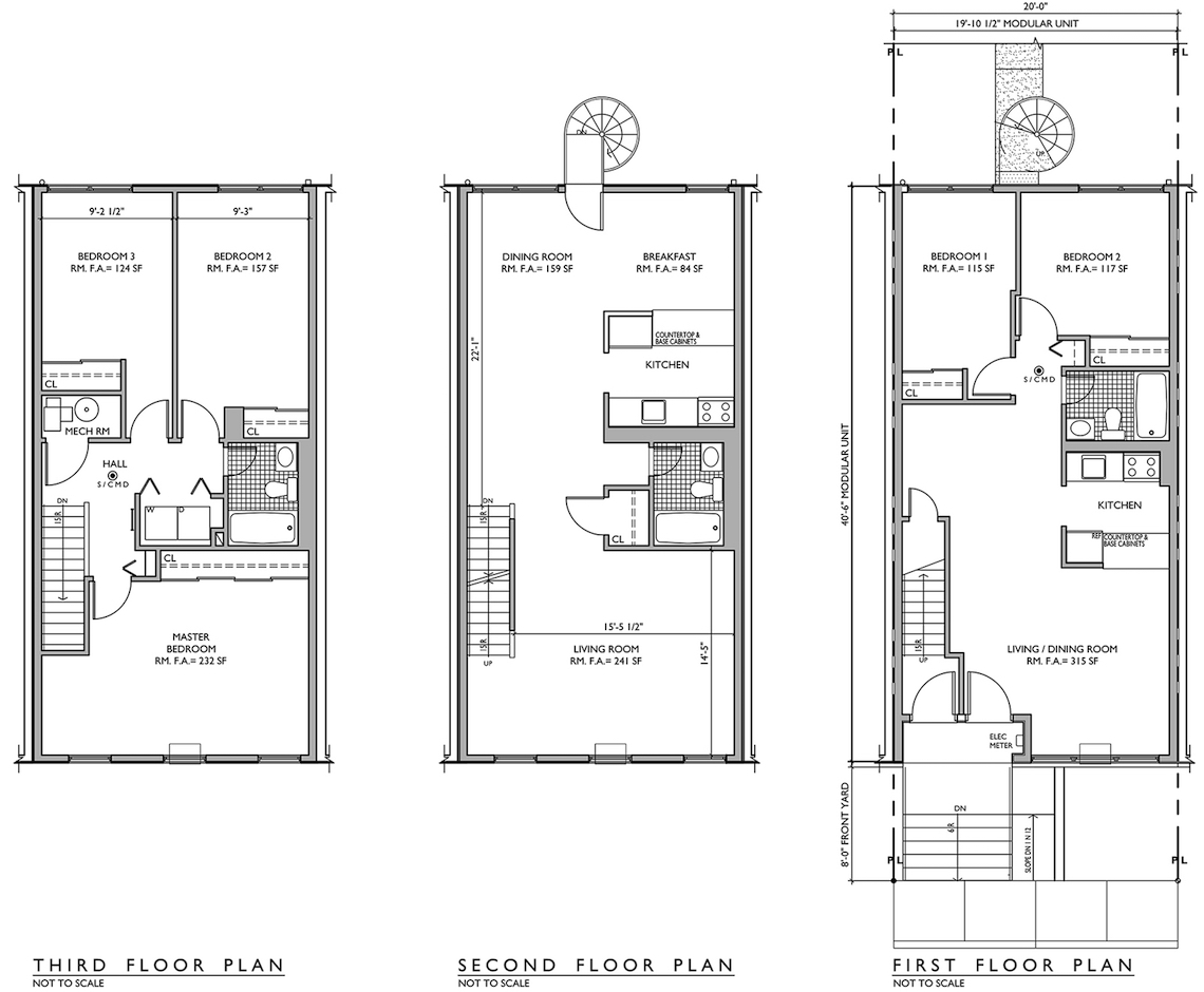
One Bedroom Row House Floor Plan
One Bedroom Row House Floor Plan: Tips and Ideas
Consider incorporating built-in furniture to save space and add a modern touch to your home. From murphy beds to wall-mounted desks, these features can help you maximize functionality without sacrificing style.
Opt for an open-concept layout to create a sense of spaciousness in your one-bedroom row house. By eliminating unnecessary walls, you can promote better flow between the living, dining, and kitchen areas, making your home feel more inviting and airy.
Don’t forget to prioritize natural light in your one-bedroom row house floor plan. Large windows, skylights, and glass doors can help brighten up your space and make it feel more welcoming. Plus, natural light has been shown to boost mood and productivity!
Incorporate outdoor living spaces, such as a balcony or patio, into your one-bedroom row house floor plan. These areas can serve as extensions of your indoor living space, providing a cozy spot to relax, entertain guests, or enjoy a cup of coffee in the fresh air.
So, whether you’re downsizing, starting fresh, or looking for a smart investment, a well-designed one-bedroom row house floor plan can help you create a comfortable and stylish home that suits your needs and lifestyle.
Floor Plan One Bedroom Apartment Stock Illustrations 183 Floor Plan One Bedroom Apartment Stock Illustrations Vectors U0026 Clipart Dreamstime
New Message
One Bedroom Apartment With Den Independent Living The 501 At Mattison Estate
The Endlessly Adaptable Row House Urban Omnibus
Townhome One Bedroom Style 1A Vantage On The Park





