Are you looking for a cozy and practical living space? One bedroom one floor house plans might be the perfect solution for you. These compact yet functional designs are ideal for individuals or couples looking to downsize or simplify their living arrangements.
With a one bedroom one floor house plan, you can enjoy the convenience of having everything on a single level. No more stairs to climb or wasted space on multiple floors. These designs are efficient and easy to maintain, making them a popular choice for those seeking a low-maintenance lifestyle.
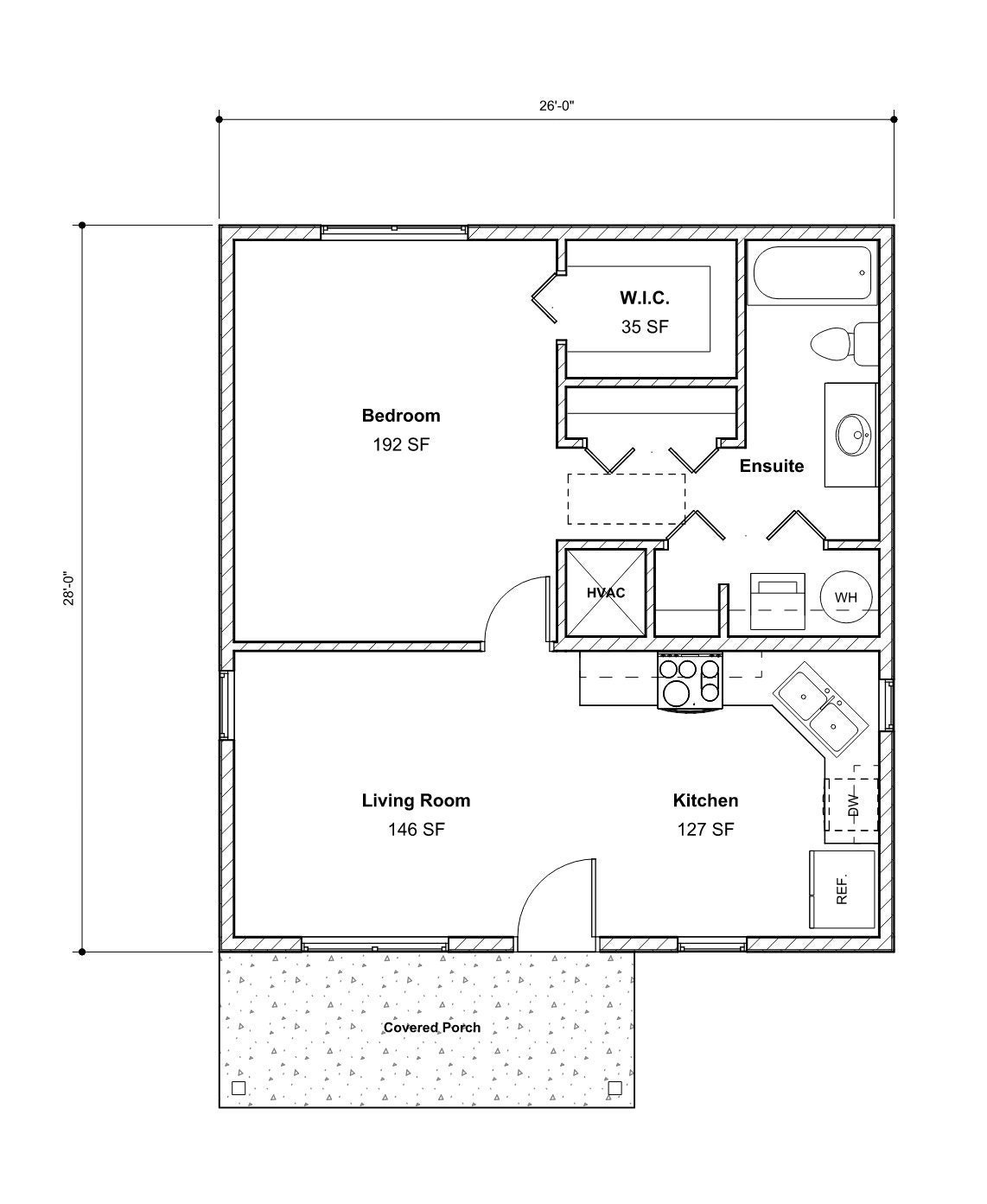
One Bedroom One Floor House Plans
One Bedroom One Floor House Plans
These plans typically feature an open layout, with the living room, kitchen, and dining area seamlessly flowing into one another. The bedroom is often tucked away for privacy, creating a cozy retreat for relaxation and rest.
Many one bedroom one floor house plans also include a small outdoor space, such as a patio or deck, perfect for enjoying the fresh air and sunshine. These designs prioritize functionality and comfort, making them an attractive option for those looking for a simple yet stylish home.
Whether you’re a first-time homebuyer, empty nester, or simply looking to simplify your life, one bedroom one floor house plans offer a practical and efficient living solution. Embrace the charm and convenience of a compact yet comfortable home with these thoughtfully designed layouts.
Explore the possibilities of one bedroom one floor house plans and discover the benefits of living in a space that is both cozy and functional. Say goodbye to unnecessary stairs and wasted space, and say hello to a simpler, more streamlined way of living.
House Plan 1 Bedrooms 1 5 Bathrooms 2927 Drummond House Plans
One Bedroom House Plans Peggy
1 Bedroom House Plan Examples
Cozy 1 Bedroom 1 Bath Floor Plan House Plan 750 Sq Ft The
Simple One Bedroom House Plans Eliana





