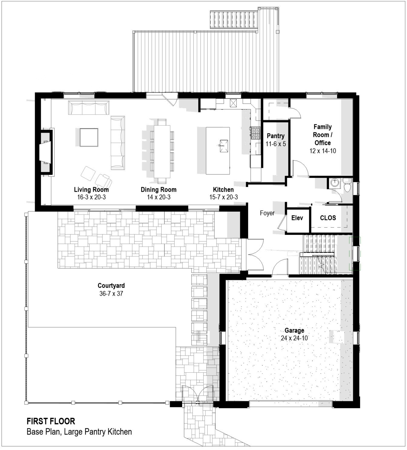
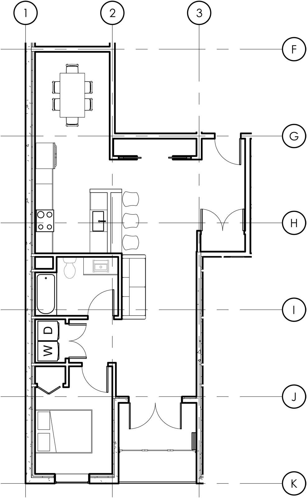
Looking for a cozy and eco-friendly living space? Check out this amazing One Bedroom House Plan Net Zero design! It’s perfect for those who want to live sustainably without sacrificing style or comfort.
This modern one-bedroom house plan features an open layout with plenty of natural light, energy-efficient appliances, and a sleek design that will make you feel right at home.
One Bedroom House Plan Net Zero
Experience Sustainable Living with One Bedroom House Plan Net Zero
With a focus on sustainability, this house plan is designed to minimize its carbon footprint while maximizing comfort and functionality. From solar panels to energy-efficient windows, every detail is carefully thought out to create a truly eco-friendly living space.
The open floor plan allows for easy flow between the living room, kitchen, and bedroom, making the space feel larger than it is. Plus, the use of natural materials and neutral colors creates a calming and inviting atmosphere.
Whether you’re looking to downsize, live off the grid, or simply reduce your environmental impact, this One Bedroom House Plan Net Zero is the perfect solution. You can enjoy modern amenities while knowing you’re doing your part to protect the planet.
Don’t wait any longer to embrace sustainable living! This house plan offers the perfect balance of style, comfort, and eco-friendliness. Say goodbye to high energy bills and hello to a greener way of living with One Bedroom House Plan Net Zero.
How To Design A Modern Net Zero Home Moss Architecture
Sustainable Net Zero Home Design By Hutter Architects
Zero Energy Homes DESIGN BUILD LLC
Schematic Design For NYC Net Zero Public Housing Project Journey Of An Architect
Prudent Living Daylight Zero Energy Home Plan Net Zero





