If you’re in the market for a new home and looking for a low-cost option, a 3-bedroom house plan might be just what you need. With enough space for your family and guests, these plans offer comfort and affordability.
Whether you’re a first-time homebuyer or looking to downsize, a low-cost 3-bedroom house plan can provide the perfect solution. You can find a variety of designs and layouts to suit your needs, all while staying within budget.
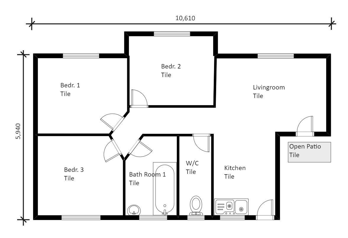
Low Cost 3 Bedroom House Plan
Low Cost 3 Bedroom House Plan
One of the benefits of a 3-bedroom house plan is the flexibility it offers. You can use the extra rooms as an office, guest room, or playroom, making it a versatile option for any family. With a smaller footprint, these plans are also more affordable to build and maintain.
When choosing a low-cost 3-bedroom house plan, consider factors like the layout, size of the rooms, and overall design. Look for plans that maximize space and offer functionality without sacrificing style. With the right plan, you can create a comfortable and inviting home for you and your loved ones.
Don’t let budget constraints hold you back from finding your dream home. With a low-cost 3-bedroom house plan, you can have the space and features you need without breaking the bank. Start exploring your options today and take a step closer to homeownership!
Low Cost Simple 3 Bedroom House Plans In Kenya Aspax
Small 3 Bedroom House Plans Pin Up Houses
3 Bedroom House Plan 1079 Sq Feet Or 100 M2 Private Bathroom To
3 Bedroom House Plans PDF Download Home Designs Nethouseplans
Plan 42910 Small 3 Bedroom House Plan





