Looking for HUD-approved 3 bedroom house plans? Whether you’re a first-time homebuyer or looking to upgrade, finding the right floor plan is crucial. With a variety of options available, it can be overwhelming to choose the perfect layout that fits your needs and budget.
From traditional designs to modern layouts, HUD-approved 3 bedroom house plans offer a range of options to suit your style and preferences. These plans are designed to meet specific standards set by the U.S. Department of Housing and Urban Development, ensuring quality and safety.
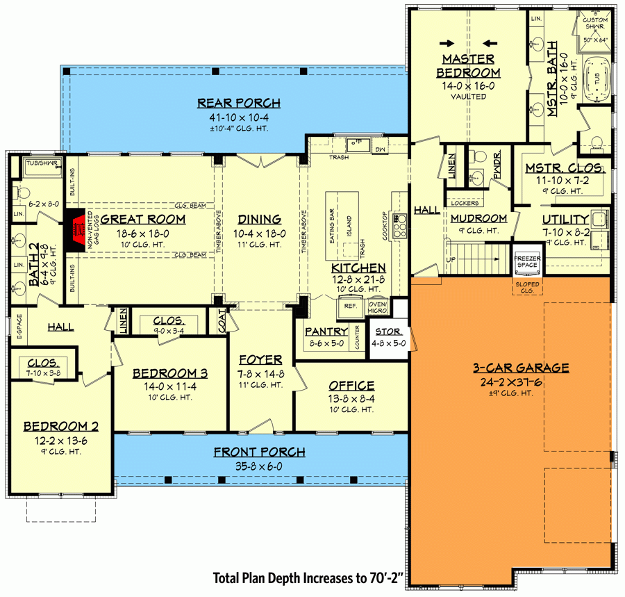
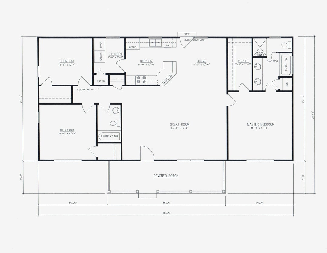
Hud Approved 3 Bedroom House Plans
Explore HUD Approved 3 Bedroom House Plans
When browsing through HUD-approved 3 bedroom house plans, consider factors such as square footage, layout, and amenities. Whether you prefer an open concept living space or a more traditional layout, there are options to fit every lifestyle.
Many HUD-approved 3 bedroom house plans also include energy-efficient features, helping you save on utility costs in the long run. Additionally, these plans often incorporate accessibility features to accommodate individuals with mobility challenges or disabilities.
Before making a decision, consult with a professional architect or builder to ensure that the chosen plan meets your specific needs and local building codes. With the right guidance and expertise, you can find the perfect HUD-approved 3 bedroom house plan that meets your requirements and exceeds your expectations.
Start your search for HUD-approved 3 bedroom house plans today and take the first step towards building your dream home. With careful consideration and attention to detail, you can find a plan that meets your needs and fits your budget. Happy house hunting!
Plan 1850
Plan 42910 Small 3 Bedroom House Plan
Floor Plan Detail Midwest Homes
3 Bedroom House Plans
3 Bedroom 2 Bath House Plan Floor Plan Great Layout 1500 Sq Ft The Houston House Large Master Bedroom And Bathroom Etsy





