Choosing the right house plan can be a daunting task, especially with so many options available. One popular choice among homeowners is the split bedroom design, which offers privacy and functionality for families and guests alike.
Split bedroom layouts separate the master suite from the other bedrooms, creating a peaceful retreat for parents. This design is perfect for those who value personal space while still enjoying family time in shared areas.
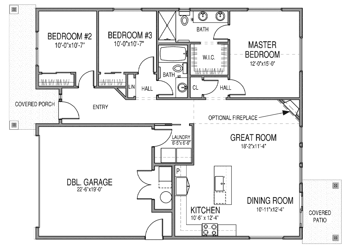
House Plans With Split Bedrooms
House Plans With Split Bedrooms
House plans with split bedrooms are ideal for families with children or frequent guests. The layout allows for quiet zones, making it easier to unwind after a long day. Parents can enjoy their own space while kids have their own rooms nearby.
These designs often feature an open-concept living area that connects the kitchen, dining, and living rooms. This setup fosters interaction among family members while maintaining the privacy of the bedrooms. It’s a great balance between togetherness and solitude.
Another advantage of split bedroom house plans is their versatility. They can accommodate various lifestyles, whether you have young children, teenagers, or are planning for retirement. This flexibility makes them appealing to a wide range of buyers.
In conclusion, house plans with split bedrooms provide an excellent solution for those seeking privacy and comfort in their homes. With thoughtful design and layout, these plans cater to diverse family needs while enhancing overall living experiences.
