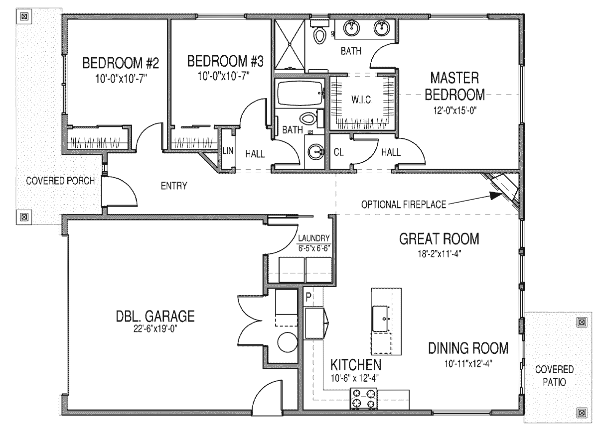
Are you looking for house plans with split bedrooms? Split bedroom floor plans are perfect for families or roommates who value privacy and separation. With bedrooms located on opposite sides of the house, everyone can have their own space to relax and unwind.
Split bedroom designs often feature a master suite on one side of the home, separate from the secondary bedrooms. This layout is ideal for parents who want peace and quiet away from the hustle and bustle of daily life. It’s also great for guests or older children who appreciate their own space.
House Plans With Split Bedrooms
House Plans With Split Bedrooms
One of the key benefits of split bedroom floor plans is the added privacy they provide. Whether you’re hosting guests or living with family members, having separate sleeping quarters can make a world of difference in terms of comfort and convenience.
Another advantage of split bedroom designs is the flexibility they offer. You can easily customize the layout to suit your needs, whether that means adding a home office or creating a cozy reading nook. With separate bedrooms, the possibilities are endless.
When searching for house plans with split bedrooms, be sure to consider factors like square footage, layout, and overall design aesthetic. Whether you prefer a traditional ranch-style home or a modern two-story house, there are plenty of options to choose from that cater to your specific needs and preferences.
In conclusion, house plans with split bedrooms offer the perfect blend of privacy, flexibility, and functionality. Whether you’re a growing family or empty nesters, this versatile layout can accommodate your lifestyle and ensure everyone has their own space to call their own.
Plan 81264 3 Bedroom Split Level House Plan With Drive Under Ga
Cortona Home Plan Weber Design Group Naples FL
Split Bedroom Open Concept Ranch House Plans The Red Cottage
Split Bedroom Floorplans Home With Split Bedrooms
Three Bedroom Country Floor Plan With Split Bedrooms





