Are you in the market for a new house plan but don’t need a master bedroom? Look no further! There are plenty of options available that cater to your unique needs and preferences.
Whether you’re looking to downsize, save money on construction costs, or simply prefer a different layout, house plans without a master bedroom offer a variety of benefits. From increased privacy to more space for other rooms, these designs can accommodate your lifestyle.
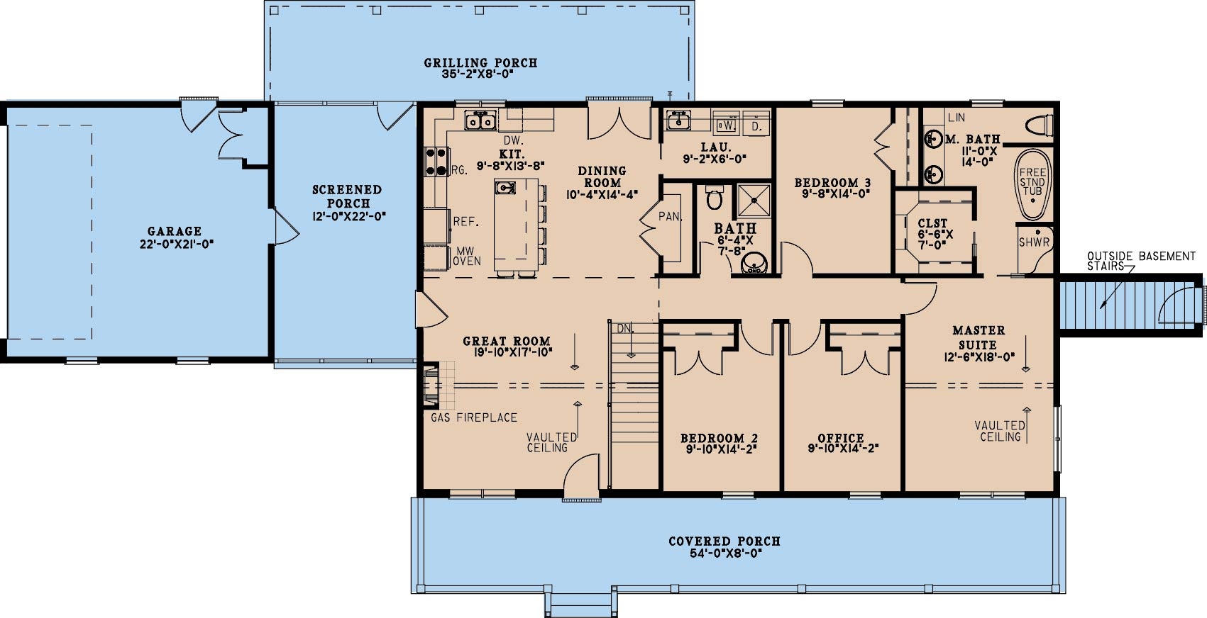
House Plans With No Master Bedroom
House Plans With No Master Bedroom
One popular option is the “split bedroom” layout, where the secondary bedrooms are located on the opposite side of the house from the main living area. This design provides added privacy and separation between the sleeping areas, perfect for families or guests.
Another alternative is a “flex room” that can be used as a bedroom, office, or additional living space. This versatile room can adapt to your changing needs over time, making it a practical choice for those who value flexibility in their home design.
For those who prioritize open-concept living, a house plan with a central living area and multiple smaller bedrooms can offer a cozy and communal atmosphere. This layout is ideal for families who enjoy spending time together in shared spaces while still having individual bedrooms for privacy.
Overall, house plans without a master bedroom provide a range of options for homeowners seeking a unique and personalized living space. Whether you prefer a traditional layout or a more modern design, there are plenty of choices available to suit your needs and preferences.
Floor Plans Independent Living Kansas Christian Home
South Florida Design Great Room Three Bedroom Floorplan South Florida Design
No Garage 2 U0026 3 Bedroom Home Plans Richard Adams Homes
No Wasted Space And Two Versions 2517DH Architectural Designs House Plans
House Plan 5442 Hollow Creek Farm House Plan





