Are you looking for house plans with a basement master bedroom? This feature can add privacy and convenience to your living space. Imagine having your own retreat within your home, away from the hustle and bustle of everyday life.
Basement master bedrooms are a popular choice for homeowners who want a quiet and secluded space to relax and unwind. They offer a cozy and intimate atmosphere that can make you feel like you’re on a retreat every day. Plus, having a bedroom in the basement can free up space on the main floor for other uses.
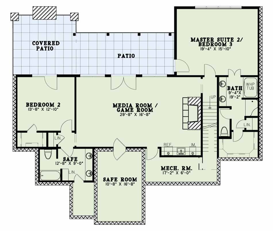
House Plans With Basement Master Bedroom
House Plans With Basement Master Bedroom
When looking for house plans with a basement master bedroom, consider the layout and design of the space. Think about how you want to use the room and what features are important to you. Do you want a spacious walk-in closet? A luxurious ensuite bathroom? A cozy sitting area?
Another benefit of a basement master bedroom is the added privacy it provides. Whether you have kids, guests, or noisy neighbors, having a secluded space to retreat to can make all the difference. You can create a peaceful oasis where you can relax and recharge, away from the distractions of everyday life.
Overall, house plans with a basement master bedroom offer a unique and practical solution for homeowners who value privacy and comfort. Whether you’re building a new home or renovating an existing one, consider adding this feature to your design. It could be the perfect way to create your own personal sanctuary within your home.
With a basement master bedroom, you can enjoy the best of both worlds – a private retreat away from the main living areas, while still being connected to the rest of your home. So why not consider this option for your next home project?
House Plan 1649 Cliffs II Angler Mountain House Plan
House Plan 837 Mosspoint Creek Riverbend House Plan
Appalachia Double A House Plan With Two Master Bedroom S
1313 DesignHouse Inc
1313 DesignHouse Inc





