Are you looking for house plans that offer a unique twist? Consider exploring house plans with a 2-bedroom loft. These designs provide an open and spacious feel, perfect for those who desire a modern and versatile living space.
With a 2-bedroom loft, you can enjoy the benefits of having additional space for guests, a home office, or even a cozy reading nook. These designs often feature high ceilings, large windows, and an airy atmosphere that is perfect for relaxation and creativity.
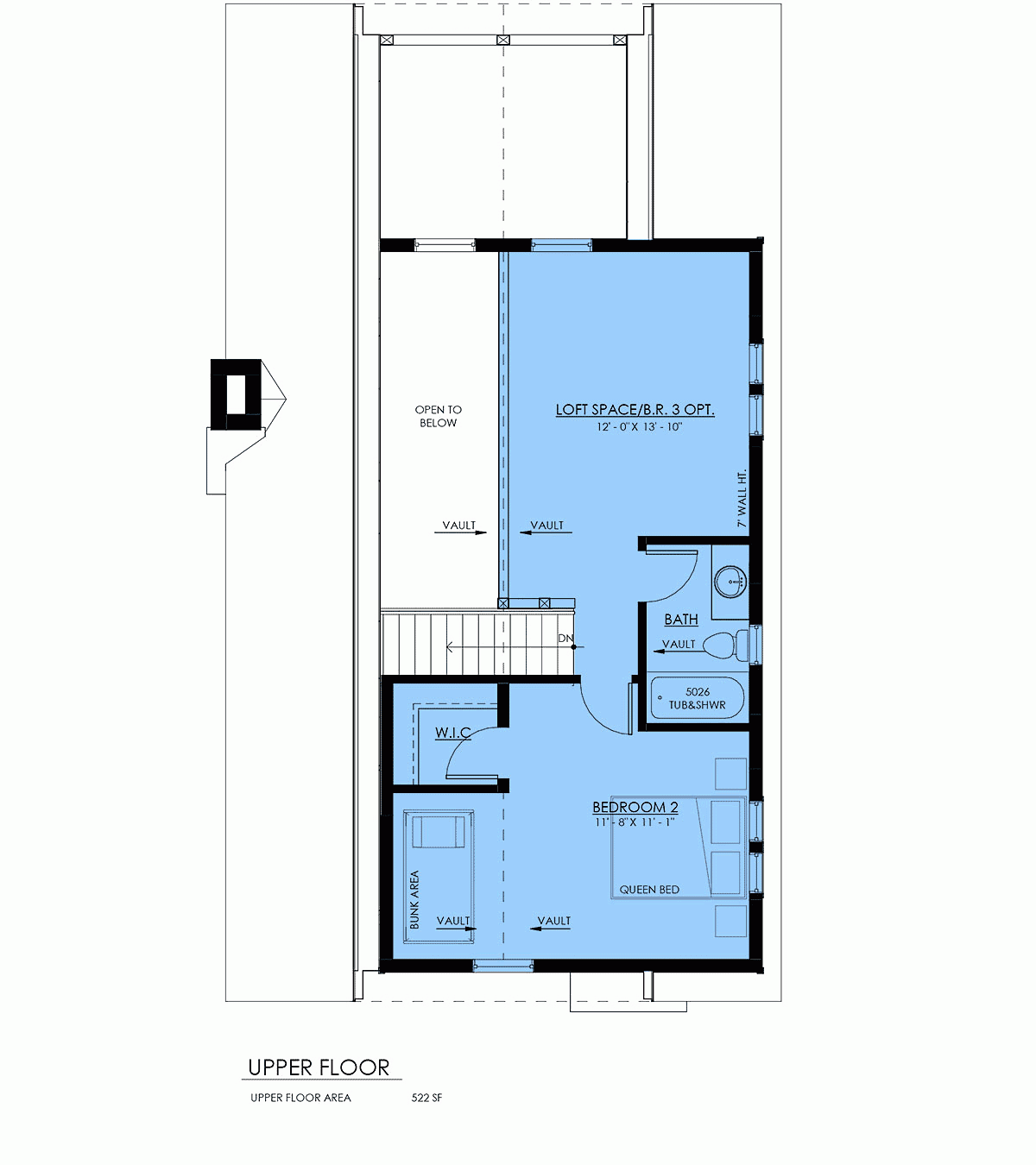
House Plans With 2 Bedroom Loft
House Plans With 2 Bedroom Loft
One of the key advantages of house plans with a 2-bedroom loft is the flexibility they offer. Whether you have a growing family or simply want a space that can adapt to your changing needs, these designs provide the perfect solution.
Additionally, the loft area can be used in a variety of ways, such as a playroom for kids, a workout space, or a quiet retreat for relaxation. The possibilities are endless, allowing you to customize the space to suit your lifestyle and preferences.
Overall, house plans with a 2-bedroom loft combine functionality with style, creating a unique and inviting living environment. If you’re looking for a home that stands out from the rest and offers versatility for years to come, consider exploring this innovative design option.
With their modern appeal and practical layout, house plans with a 2-bedroom loft are sure to impress both residents and guests alike. Embrace the beauty of open living spaces and make a statement with a home that truly reflects your personality and vision.
2 Bedroom Small House Plans Magdalene
Two Bedroom Loft Woodsview Apartments
Plan 100159 Contemporary A Frame Style With 3 Beds 2 Baths And
Hayloft Haven Two Story Monitor Style Barndominium House Plans
Plan 82912 Modern Farmhouse With Loft Space





