If you’re looking to build your dream home in New Zealand, finding the right house plans is essential. With a 4-bedroom layout, you can create a spacious and comfortable living space for your family.
House plans in NZ come in a variety of styles and designs to suit different preferences and needs. Whether you prefer a modern, traditional, or eco-friendly design, there are options available to cater to your taste.
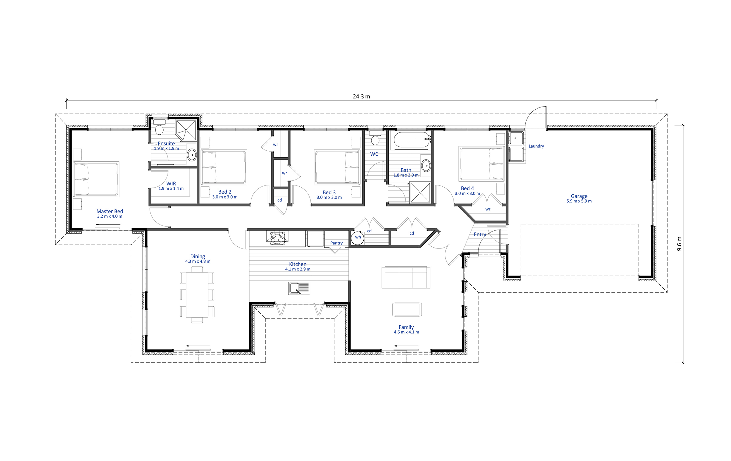
House Plans Nz 4 Bedroom
House Plans Nz 4 Bedroom
When choosing a 4-bedroom house plan in NZ, consider factors such as the size of your family, lifestyle, and future needs. A well-designed layout can provide ample space for everyone while maximizing comfort and functionality.
Look for house plans that offer open-plan living areas, spacious bedrooms, and modern amenities. Whether you’re building a new home or renovating an existing property, a 4-bedroom layout can provide versatility and flexibility to accommodate your changing needs.
With the right house plan, you can create a home that reflects your style and personality while meeting your practical requirements. Take the time to explore different options and find a design that suits your budget and preferences.
Start your search for the perfect house plan in NZ today and begin the exciting journey of building your dream home. With a 4-bedroom layout, you can create a space that is both functional and inviting for your family and guests to enjoy.
Watea 4 Bedroom House Plan Opito Bay Lot 7 Watea Bay Of Islands
Roa House Plan 4 Bedroom Single Level House 143m2
Polo 4 Bedroom Plan Christchurch Builders Orange Homes
Four Bedroom Plans Johnston Builders
Wairakei 4 Bedroom House Plan Double Garage Latitude Homes





