Are you looking for the perfect house plans for a three-bedroom massionnet? Look no further! We have a variety of designs that will suit your needs and preferences. Whether you prefer a modern or traditional style, we have something for everyone.
Our house plans are carefully crafted by experienced architects to ensure that every detail is thoughtfully considered. From the layout of the rooms to the placement of windows and doors, our designs are both functional and aesthetically pleasing.
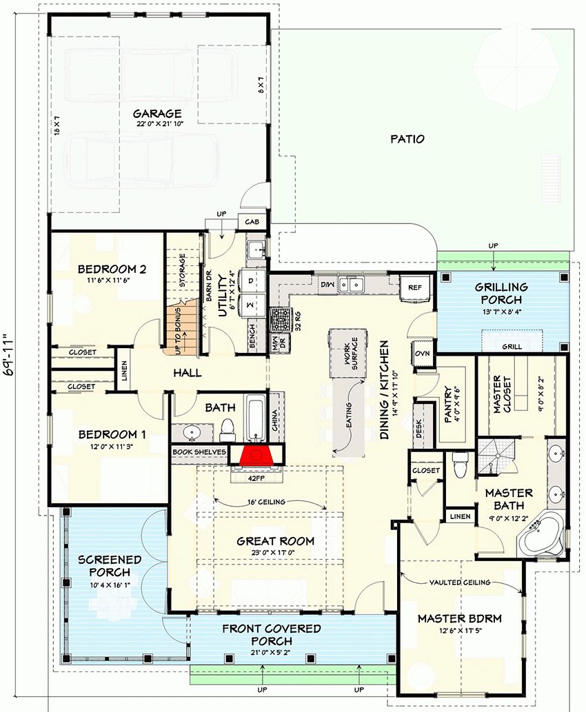
House Plans For Three Bedroom Massionnet
House Plans For Three Bedroom Massionnet
When choosing a house plan for a three-bedroom massionnet, it’s essential to consider the size of your family, your lifestyle, and your budget. Our designs range from cozy and compact to spacious and luxurious, so you can find the perfect fit for your needs.
With a three-bedroom massionnet, you have the flexibility to use the extra space as a home office, guest room, or playroom for your kids. Our designs also include outdoor living areas such as patios or decks, perfect for enjoying the fresh air and sunshine.
Whether you’re building your dream home from scratch or renovating an existing property, our house plans for three-bedroom massionnets are sure to inspire you. Contact us today to explore our collection and find the perfect design for your needs.
Don’t wait any longer to turn your dream home into a reality. Let our house plans for three-bedroom massionnets be the starting point for your next project. With our expertise and creativity, we can help you create a space that you’ll love coming home to every day.
3 Bedroom Contemporary Ranch House Plan With Attached Casita
3 Bedroom House Plan 1079 Sq Feet Or 100 M2 Private Bathroom To
House Plan 3 Bedrooms 1 5 Bathrooms 3056 Drummond House Plans



