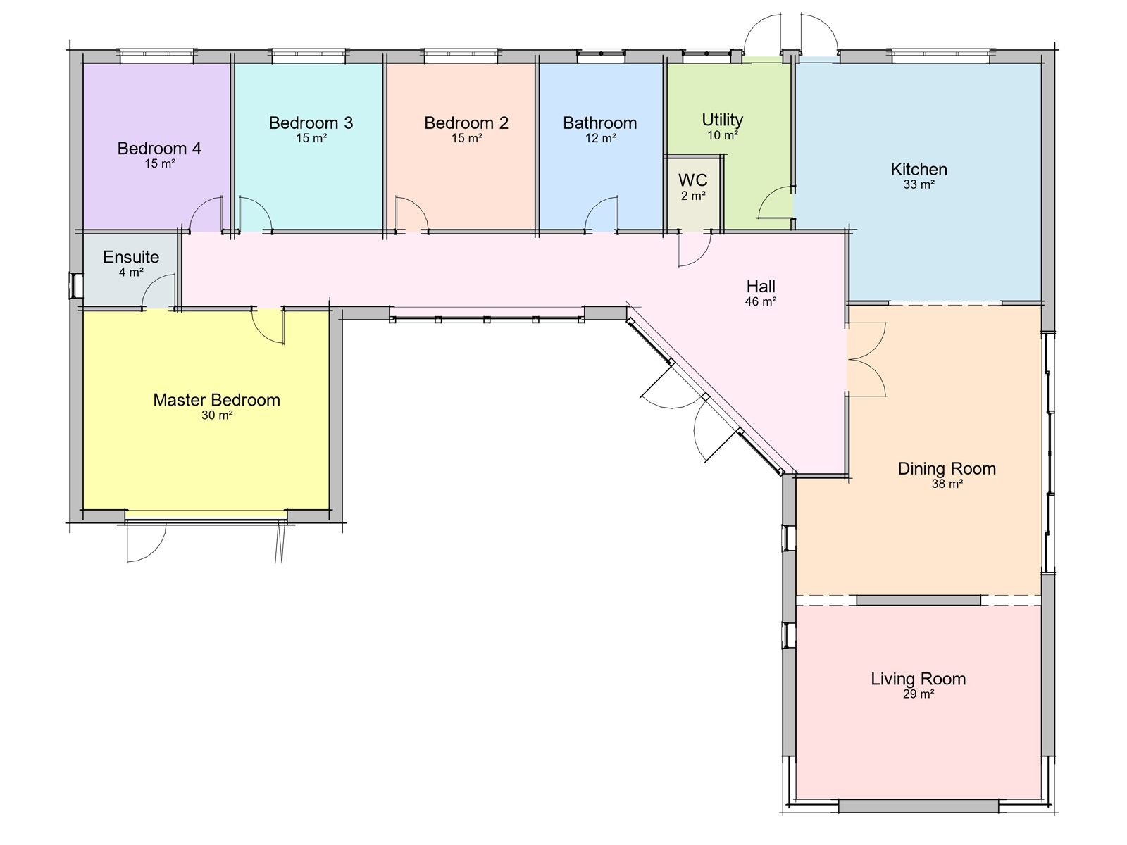
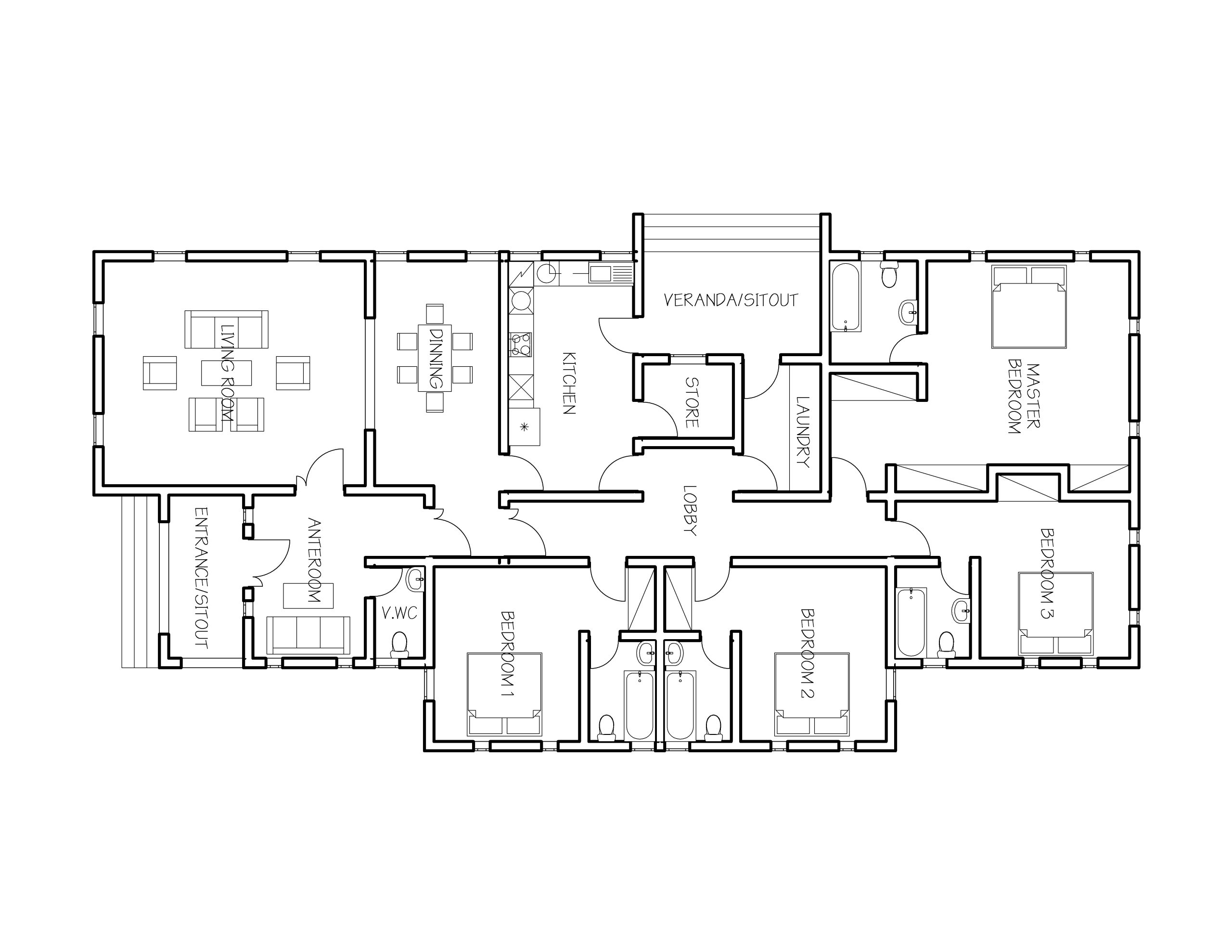
Thinking about building a new home? Consider house plans for a bungalow with four bedrooms. This style of home offers comfort, space, and a cozy atmosphere for your family to enjoy.
With a bungalow design, you can enjoy the convenience of having all bedrooms on one level, making it easy for both young children and elderly family members to navigate the space. Plus, the open floor plan allows for seamless flow between rooms.
House Plans Bungalow 4 Bedroom
House Plans Bungalow 4 Bedroom
When choosing a house plan for a bungalow with four bedrooms, consider factors such as the layout, size of the rooms, and overall design aesthetic. You want a home that not only meets your needs but also reflects your personal style.
With four bedrooms, you have plenty of space for a growing family, guests, or a home office. You can also customize the layout to include features like a master suite with a walk-in closet and ensuite bathroom, a spacious kitchen with a large island, and a cozy living room with a fireplace.
Whether you prefer a modern bungalow with sleek lines and minimalist design or a traditional bungalow with charming details and a front porch, there are house plans available to suit your taste. Explore different options and find the perfect plan for your dream home.
In conclusion, house plans for a bungalow with four bedrooms offer a combination of comfort, style, and functionality. Consider this popular design option for your next home building project and create a space that you and your family will love for years to come.
4 Bedrooms Bungalow House Plan AfroHousePlans
Four Bedroom Bungalow Plan The Blakemere Houseplansdirect
4 Bedroom Dormer Bungalow Plans The Aconbury
Outstanding 4 Bedroom Bungalow Floor Plan Sample
4 Bedroom Bungalow plan With Measurement





