If you’re looking for a cozy and practical living space, a two-bedroom flat might be the perfect option for you. With just enough space for a small family or roommates, these house plans are both functional and stylish.
Whether you’re a first-time homeowner or downsizing from a larger house, a two-bedroom flat offers the convenience of a compact layout without sacrificing comfort. You can easily personalize the space to suit your lifestyle and needs.
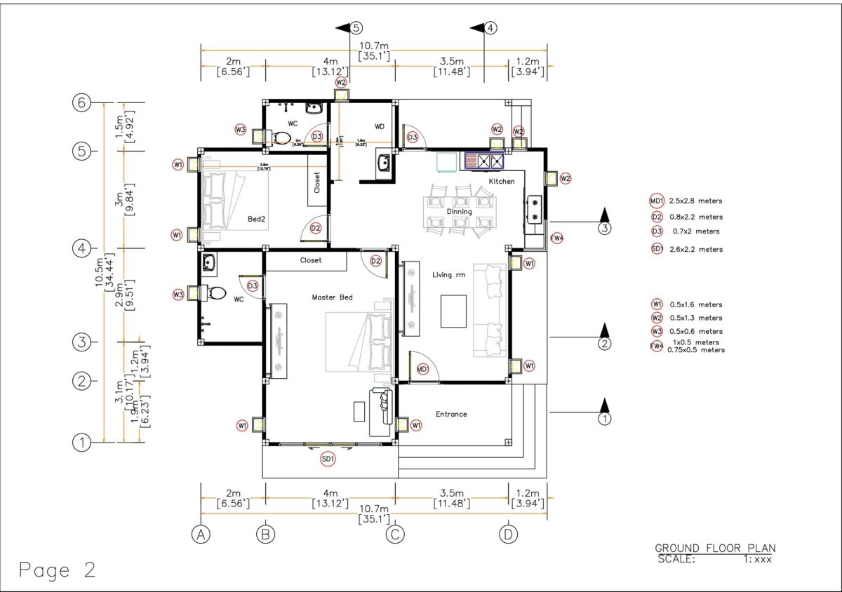
House Plan For Two Bedroom Flat
House Plan For Two Bedroom Flat
When designing a two-bedroom flat, it’s important to maximize every inch of space. Consider open-concept living areas to create a sense of openness and flow. Utilize built-in storage solutions to keep clutter at bay and make the most of your square footage.
Choose furniture that serves multiple purposes, such as a sofa bed or a dining table with storage compartments. This will help you make the most of your space while maintaining a clean and organized look. Don’t forget to add personal touches like artwork and decor to make the space feel like home.
With a well-thought-out house plan for a two-bedroom flat, you can create a comfortable and inviting living space that meets all your needs. Whether you prefer a modern aesthetic or a cozy traditional style, there are endless possibilities to customize your flat to reflect your unique taste and personality.
Overall, a two-bedroom flat is a versatile and practical housing option that offers the perfect balance of functionality and style. With the right house plan and design choices, you can create a space that you’ll love coming home to every day.
Style EF 2 Bedroom Village At Fox River
Floorplan Feature Two Bedroom Apartment Springmoor Retirement Community
Double Flat Floor Plan Two Bedroom Apartments Vector Image
2 Bedroom Granny Flats Floor Plans Designs U0026 Builds
2 Bedroom Apartment House Plans





